最近、平屋住宅の着工数が増えている。なぜ平屋住宅は人気があるのか、実際に購入したご家族にお話を伺った。
当初は土地を買って好きなデザインの平屋住宅を建てるつもりだった
「とにかく広い敷地に、間取りもデザインも自分好みにした平屋住宅を建てたい」
これはMさん夫妻が結婚前から思い描いていた夢だ。
なぜ“平屋”限定だったのだろうか。
「私の実家は2階建て。私が家を出て父と母の2人の生活になると、上の階は使わなくなっていったんですよね。2階に上がって洗濯物を干すのもいちいち大変そうだな、と思っていました。それに加えて、私は子どものころ、2階は暗くて怖くて上がれない場所だったんです。私も結婚して、近いうちに子どもは欲しいけれど、子どもはいずれ家を出ていくもの。案外2階が必要な時期は短い。だったら平屋がいいって思うようになったんです」(妻のYさん)
マンションにはない、最大の高さは4mになる勾配天井が開放感を生むリビング(写真撮影/相馬ミナ)
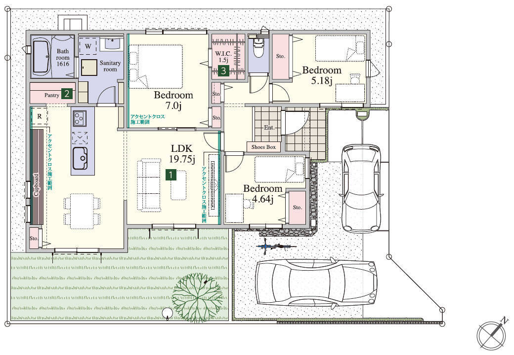
(画像提供/新昭和イクス)
●Mさん夫妻邸データ
敷地面積/約172平米
建物面積/約84平米
間取り/3LDK
家族構成/夫28歳、妻27歳
(参考値)
価格/3990万円~4980万円(税込)
※ウィザースガーデン印西牧の原で分譲している物件の価格。
注文住宅を断念。“建売住宅”という選択に
実際に探し始めると、思った以上に難航した。理想の広さを求めると予算を超える。一方、予算内で探すと、思わぬ障壁があった。
「“平屋”ってぜったい広い土地ありき、じゃないですか。金額がどうしても高くなってしまうんです。じゃあ、遠くてもいいやと思ったら、水道が通っておらずコストがかかったり、遠すぎて道路が未整備で車が通りにくかったりとか、遠さ以外の課題もありました」(夫のSさん)
では広さを妥協して、少し便利な立地で、と考えてみたものの、実際に見てみると、隣に高い建物が建っていたり、将来的に高い建物が建つ可能性もあり日当たりが保証されないなど満足な平屋の実現には懸念があった。
「インテリアにもこだわりたくて、仮の賃貸住まいではなく、20代のうちにマイホームがほしかったんです」とMさん夫妻(写真撮影/相馬ミナ)
そんななか見つけたのが、今回購入した、印西牧の原にある平屋の分譲住宅だ。
「当初、建売住宅は考えていませんでした。味気ない、同じ住宅がただ並ぶイメージが強かったんです。でもたまたまサイトで見た、この物件のモデルハウスの写真がかわいくて。“えっ、建売の平屋住宅ってあるんだ。
例えば横一面のキッチンにそのままつながるダイニングスペース。天井高最大4mの開放的なリビング、広々としたパントリーに加え、あらゆる場所にこまやかな収納が標準設備として設けられている点も気に入った。
「販売が開始されてすぐ申し込みました。買った家は未完成でしたが、他の現場で、同じ間取り、同じ仕様の家が販売されていたので、そこを見学して、ほぼ即決しました」(夫のSさん)
キッチンからそのままダイニングテーブルにつながるプランも決め手のひとつ。I型キッチン、横並びキッチンなどともいわれる近年人気のプラン。木目調のクロスを張った梁も食器棚もカウンター下の収納も標準仕様(写真撮影/相馬ミナ)
プランで最も気に入ったのが広々としたパントリー(写真撮影/相馬ミナ)
寝室の窓はすりガラスで、プライバシーを考慮しつつ採光を確保(写真撮影/相馬ミナ)
家事動線のラクさを実感。間取りも3LDKで十分
実際に暮らしてみると、思っていた以上に平屋住宅は快適だったそう。
「前住んでいた賃貸物件は、エレベーターのない3階建てのアパートだったので、食材など買ってきたものを3階まで運ぶのが本当に大変で。たとえエレベーターがあっても、駐車場から入り口まで距離があるでしょう。この住まいは、車からすぐ買ってきた重い食料品を室内に運べるのがラクです」(妻のYさん)
そしてロボット掃除機が使いやすい。「3階建ての家を買った友人が、“ロボット掃除機はウチには無理だ”と言っているのを聞いて、平屋はロボット掃除機が最大限に能力を発揮できる家だなと思いました」(妻のYさん)
マイホームを手に入れたことで、夫妻のライフスタイルにも新しい彩りが加わった。庭で食事をしたり、ガーデニングを楽しんだり、広くなったキッチンでパンづくりに挑戦したり。
「洗車を自宅の駐車場でできるようなったのもうれしいです。以前は他の入居者の車がすぐ横にある駐車場だったので遠慮して洗車場まで行っていたので。ささやかな夢がかないました」(夫のSさん)
庭がある暮らしも喜び。「フェンスをDIYしたいなと考えています。家を持つことで新しい楽しみが生まれました」(妻のYさん)(写真撮影/相馬ミナ)
新居でキッチン雑貨を飾るのも楽しい(写真撮影/相馬ミナ)
妻のYさんは、オランダ生まれのミッフィーがお気に入り。新居のあちこちに飾っている(写真撮影/相馬ミナ)
トイレの案内を木のパーツを使って自分でデコレーション(写真撮影/相馬ミナ)
ただ、平屋住宅は2階建てに比べたら部屋数が少ない、という難点もある。
「確かに子どものために一戸建て、という方ならそう思うかもしれませんね。私達はあまり子育てだけのための家とは考えていないかも。今は夫婦2人だし、いずれ子どもは欲しいけれど、個室は3つの3LDKで十分。だって子どもって自分の部屋にいないでしょう。私も子どものころ、自分の部屋で勉強せず、ずっとリビングにいましたから。そして、子どもが独立すれば2人になるわけです。
いずれ子ども部屋に、と考えている部屋を今は、夫妻それぞれの趣味の部屋に。ここは妻のYさんのネイルスペース(写真撮影/相馬ミナ)
(写真撮影/相馬ミナ)
もう一部屋は夫が趣味で集めているサッカーのスパイクのコレクションを飾る場所に(写真撮影/相馬ミナ)
「手堅い平屋ニーズを実感」。売主側から見る隠れたメリットも
このMさん夫妻が購入したのは25邸すべて平屋という分譲地「ウィザースガーデン印西牧の原」。では「なぜすべて平屋住宅として売り出したのか」、売り主である新昭和イクス販売促進室の中島拓巳(なかじま・たくみ)さんにお話を伺った。
「当社は千葉県を拠点に、一戸建ての分譲住宅の企画・施工・販売などを行っていますが、“平屋住宅”に対するニーズが着実にありました。中には “絶対、平屋住宅がいい”というお客様もいらっしゃいました。
平屋も含めいろんなスタイルの住宅が混在する分譲地を手掛けたこともありますが、当初は平屋を考えていなかったお客様が実際に平屋をご覧になり、“平屋住宅のほうがいい”と希望が変わっていくなど、根強いニーズを肌で感じていました。他社含め数ある分譲地と差別化もでき、“平屋住宅”だけの分譲地にチャレンジしたかったんです」(中島さん)
とはいえ、平屋住宅にはプライバシーや十分な採光・通風を確保するための広い敷地が必要。広い敷地を確保するとなれば郊外にならざるをえないが、車でしかアクセスできないような郊外すぎる立地はニーズがないだろう。そんな中、印西牧の原駅徒歩13分の立地に広い土地を確保でき、念願の“すべて平屋住宅” の分譲が可能になったのだ。
さらに、購入検討者や購入者が最初には気づきにくい平屋住宅のメリットとして「コスト面もある」と中島さん。
「当然2階建てに比べると使われる資材は少ないため、建築費は安くて済みます。
全25邸が平屋住宅の「ウィザースガーデン印西牧の原」。将来的に修繕費を抑えられるよう、劣化、汚れ、キズに強いタイルを使用している(写真撮影/相馬ミナ)
遮熱効果の高いセラミックの瓦と太陽光パネルを採用。自家発電でエネルギー効率を高めている(写真撮影/相馬ミナ)
新昭和イクスの場合、新規分譲戸建て住宅を購入されるのは8~9割がファミリー層だそう。
「特に、小学校に上がる前のお子さまがいるご家庭が最も多いです。今回のMさんのように最初から平屋住宅に絞って探されているケースも多いように思います。建物面積はおおよそ80平米前後で、通常の2階建ての一戸建てに比べるとコンパクトですが、マンションの専有面積に比べれば広い。さらに、管理費や駐車場代が不要な点にメリットを感じていらっしゃると思います」
若い世代での平屋住宅へのニーズの高さを実感した、今回の取材。“ワンフロアで移動が済む”マンションのメリットと、“足音を気にしないでいい”“庭がある”など一戸建てのメリットの両方を感じられるからだろう。マンションと比較するなら天井の高さもあるので、“平屋住宅はやや狭いのでは?”という不安点もさほど感じないかもしれない。今後、平屋を新たな選択肢とするニーズはさらに増えそうだ。
●取材協力
新昭和イクス

![[のどぬ~るぬれマスク] 【Amazon.co.jp限定】 【まとめ買い】 昼夜兼用立体 ハーブ&ユーカリの香り 3セット×4個(おまけ付き)](https://m.media-amazon.com/images/I/51Q-T7qhTGL._SL500_.jpg)
![[のどぬ~るぬれマスク] 【Amazon.co.jp限定】 【まとめ買い】 就寝立体タイプ 無香料 3セット×4個(おまけ付き)](https://m.media-amazon.com/images/I/51pV-1+GeGL._SL500_.jpg)







![NHKラジオ ラジオビジネス英語 2024年 9月号 [雑誌] (NHKテキスト)](https://m.media-amazon.com/images/I/51Ku32P5LhL._SL500_.jpg)
