RoomClipに登録された新しいユーザーさんの中から、毎回お一人をピックアップしてご紹介する本連載。今回ご紹介するのは建築デザイナーとして活躍されているm.さんが、自ら手掛けてリノベーションをされたご自宅です。
今回ご紹介するのはこの方です!
m.さん1969builtヴィンテージマンションを、自ら設計・監督をして2年前にリノベーションしました。仕事で1000件近くのマンションをリノベーションしているのですが、自邸がまさかの圧倒的に一番の苦労物件に。1階を解体したらまさかの土!このままではどんなに断熱したところで、床から湿気は上がるし寒いだろうと、年の瀬に悩んだ末、人生初の生コン車とポンプ車出動でコンクリート流し込みました。本当に一大決心でしたが、やってよかったです。断熱もしっかり施工したのでとても快適です。これからリノベーションする方たちの参考に少しでもなればうれしいです。古いマンションでも暖かさを諦めないでください!m.さんのインスタグラムはこちら
自分らしさ、そして家らしさも大切に
■広く見せる工夫と間取りの理由
m.さんのご自宅は神奈川県某所に建つヴィンテージマンションの一室です。自ら設計と現場監督、時々施行に携わりリノベーションを手掛けた間取りは、1LDK。暮らすご家族は、m.さんと息子さん、愛犬のポメラニアンの2人と1匹です。
ナチュラルでモダンな玄関では、入るとワッと広さを感じます。思っていた以上の広がりは、恐らく外から来た人にとっては浮遊感すら覚えるギャップかもしれません。扉を開けてすぐ横の壁が1面大きな鏡になっているのがその秘訣。同時に正面にある透明ガラスのドアにより、リビングの眺めを玄関の奥行きとして取り込まれているのが巧みです。
透明ガラスのドアを開き、リビングの全貌をあらわにすると、実は奥に見えていたカーテンが窓のためのものではないことを知ります。完全にしまった状態だと、大きな窓があるものと思った方はきっと多いはずです。少し開けていただくと、それはオープンクローゼットの目隠し。エフォートレスな雰囲気もとても素敵ですね。
そしてここで見逃すことができないのが、その手前にレイアウトされたカラフルなソファです。『家を買うより先にソファを買いました。このソファに合わせて家を設計しました。』とm.さんが語るこちらは名実共に家の顔であり中心。サイズもかなり大きいので、とにかくリビングを広くつくられたのだそうです。
■家の形を活かしたシンデレラフィット
お話しにある通り、リビングは実にゆったりとした贅沢なリラックス空間。フローリングの向きや天井の高さ、ちょっと個性的な空間の形、すべてが相乗し合った心地良い広がりが、心も体も解きほぐしてくれそうです。ちなみに本当のリビング開口はこちら側でした。
実は間取りを伺ったときから気になっていたことがあります。
詳しく伺ってみると、絶妙な角度でレイアウトされたデスクは壁に沿わせた造作で、あつらえたようなベッドはこのスペースに合わせて選んだものだから、引っ越し業者さんもビックリのシンデレラフィットなのだとか。家の形からもインテリアのインスピレーションを膨らませることができるのですね♪
■何気ない日も愛おしめるキッチン
m.さんのお宅は、リビングドアを中心にして左右にLDKが分かれています。リビング側からダイニングとキッチン方向を見ると、奥まっていてなんだかワクワクしませんか?フローリングとフロアタイルに分かれた床材でゾーニングされているのも、こだわりを感じるところです。
外から帰ってきたらここで手を洗えます。そのままキッチンへも行きやすい仕様。丸テーブルのダイニングセットや吊るされたタオルのカラフルさが、活き活きとした日常があることを教えてくれるようでもあります。m.さんの色使いの妙が冴えわたっていますよね。一方でキッチン本体やツール、内装はどちらかと言えばシックなモノトーンベースであるというメリハリも絶妙です。
そしてこちらでも個性的な家の形は光っていました。
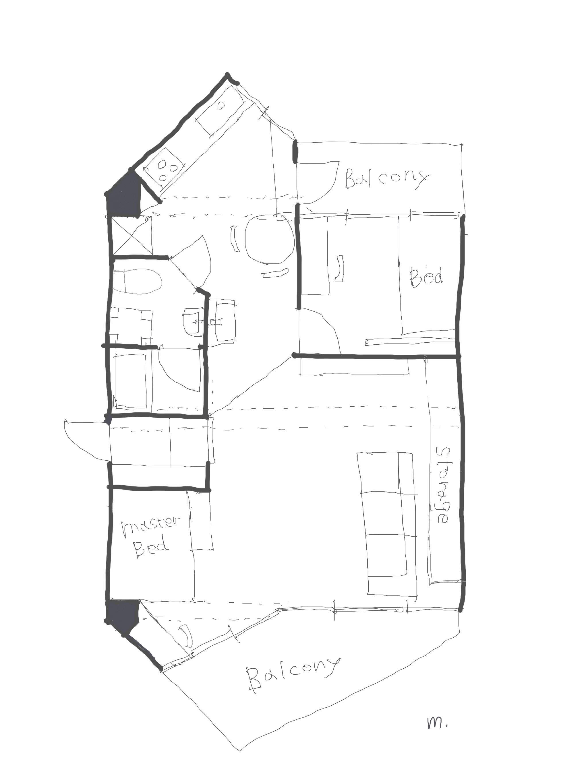
m.さん邸の間取り図
m.さん宅は1LDKの間取りです。変則的な家の形を活かし、リビングの中に自室スペースを確保するなどの工夫をされています。また、ソファ横にある壁は飾り気なく留め置きプロジェクター投影に使用されていたり、他の空間とは差別化したモノトーンベースのトイレ・浴室であったりと、今回ご紹介しきれていない見どころはまだまだたっぷり。ぜひ、お見逃しなく!
m.さんのお部屋ギャラリー
クリックすると大きいサイズでみることができます。
執筆:RoomClip mag 編集部
![LDK (エル・ディー・ケー) 2024年10月号 [雑誌]](https://m.media-amazon.com/images/I/61-wQA+eveL._SL500_.jpg)
![Casa BRUTUS(カーサ ブルータス) 2024年 10月号[日本のBESTデザインホテル100]](https://m.media-amazon.com/images/I/31FtYkIUPEL._SL500_.jpg)
![LDK (エル・ディー・ケー) 2024年9月号 [雑誌]](https://m.media-amazon.com/images/I/51W6QgeZ2hL._SL500_.jpg)




![シービージャパン(CB JAPAN) ステンレスマグ [真空断熱 2層構造 460ml] + インナーカップ [食洗機対応 380ml] セット モカ ゴーマグカップセットM コンビニ コーヒーカップ CAFE GOMUG](https://m.media-amazon.com/images/I/31sVcj+-HCL._SL500_.jpg)



