RoomClipユーザーの素敵なキッチンを紹介する「憧れのキッチン」連載。
今回は、モダンな落ち着きにナチュラルなぬくもりを溶け合わせた、すっきりと心地良い暮らしづくりをされているzonoさん宅のキッチンをご紹介します。
共働き子育て中の夫婦です。昨年中古マンションを購入し、念願のリノベーションを実施。お酒や料理が好きで、カフェやバーのような雰囲気を自宅でも楽しめるよう、好みに合わせてDIYしながら空間づくりをしています。
バーの雰囲気で、ホームパーティーをもっと楽しく
zonoさん宅のキッチンは、お酒好きがつい通ってしまうような、なんとも大人の魅力にあふれた空間です。漂うのが夜のギラギラ感ではなく、落ち着いた静けさとあたたかなぬくもりであるのが素敵なところ。ほっと、心ほぐれるひと時を過ごせる予感しかしません。特徴的なつくりだと思うのですが、キッチンづくりのテーマや特別なこだわりがあれば、ぜひ教えてください!
zonoさん「お酒と料理が好きな私たちは、ホームパーティーを楽しめる空間を目指してリノベーションしました。コの字型の広々としたキッチンには、バーカウンターや酒棚、パントリーを設置。あたたかみのある、おしゃれなバーのような雰囲気にこだわりました。」
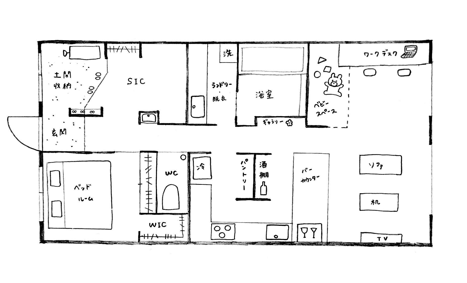
■表裏のある家の真ん中
理想の過ごし方と好みが、しっかりと落とし込まれているのですね。間取り図で拝見すると、形もとてもユニークであることがわかります。ベースとなるのはL字型のキッチン。そこに、広めのカウンターを合わせることで、コの字型の大きな空間が生まれます。さらに、その真ん中に表裏を分けるようなカウンターとパントリーがあるのも特徴。回遊性のあるオープンなスタイルでありながらも、見通しの良い部分と少し奥まって隠れる部分が生まれているのが絶妙です。
■キーワード1 くつろぎながら、雰囲気とお酒に酔える
「ペンダントライトや酒棚、DIYしたワイングラス掛けなどで、バーのような雰囲気を意識した空間づくりをしています。あたたかみのある照明とインテリアで、くつろぎながらお酒や料理を楽しめるのが魅力です。」
■キーワード2 広さも動線も快適だから、ふたりで料理がしやすい
「広めのコの字型キッチンは、夫婦で料理をしても余裕があります。また、ホームパーティー中でも、そのまま料理が出せる動線でとても便利なんです。キッチンの天板や床材をグレーにしたので、汚れが目立たないのも◎。床材をリビングと変えて、空間に自然な区切りを設けているのもポイントです。」
■キーワード3 すっきりとした印象にまとまる、個性的な回遊動線
「酒棚の裏側にパントリーを設けています。そのさらに奥に冷蔵庫を配置しているため、収納や家電が隠れるようになっているのもこだわったところです。キッチンをぐるっと回遊できる動線は、リビング側から生活感が見えず、空間全体がすっきりとした印象になるので気に入っています。」
キッチンをもっと素敵にするためのアドバイスがあれば教えてください
「雰囲気づくりには間接照明が効果的でした。また、木目ベージュ、グレー、白、この3色で全体に統一感を持たせたのもポイントです。『バーカウンターと酒棚』のように譲れないテーマをひとつ決めて、漠然とした理想ではなく『今の悩みや理想の暮らし』を具体的に言語化してから設計に臨むのがおすすめです。」
まとめ: 譲れないもの×楽しい毎日を丁寧に突き詰める
zonoさんのキッチンは個性的で、込められているこだわりや思いもとても素敵でした。形やスタイリング、DIYのアイデアと、どれも真似してみたくなるものばかりかもしれません。でも、そっくりそのまま真似るのは難しいし、それが他の誰かにとっての正解になるとは限りません。
そこで、ぜひ参考にしていただきたいと思ったのが、『譲れないもの』を見つけること。
執筆:RoomClip mag 編集部
![LDK (エル・ディー・ケー) 2024年10月号 [雑誌]](https://m.media-amazon.com/images/I/61-wQA+eveL._SL500_.jpg)
![Casa BRUTUS(カーサ ブルータス) 2024年 10月号[日本のBESTデザインホテル100]](https://m.media-amazon.com/images/I/31FtYkIUPEL._SL500_.jpg)
![LDK (エル・ディー・ケー) 2024年9月号 [雑誌]](https://m.media-amazon.com/images/I/51W6QgeZ2hL._SL500_.jpg)




![シービージャパン(CB JAPAN) ステンレスマグ [真空断熱 2層構造 460ml] + インナーカップ [食洗機対応 380ml] セット モカ ゴーマグカップセットM コンビニ コーヒーカップ CAFE GOMUG](https://m.media-amazon.com/images/I/31sVcj+-HCL._SL500_.jpg)



