RoomClipユーザーの素敵なキッチンを紹介する「憧れのキッチン」連載。
今回はゆったり暮らせるようにシンプルに、ナチュラルモダンなインテリアを楽しむmaifofoさんに、キッチンづくりの工夫やこだわりをお伺いしていきます。
夫、私、2歳の息子の3人暮らしです。2025年2月に、新築のお家に入居しました。ナチュラルモダンの素敵なお家を目指して、日々少しずつインテリアを構築中です。
落ち着きと明るさを兼ねる、木目と白のバイカラー
maifofoさん宅のキッチンは、ナチュラルな木のぬくもりをアクセントに、白基調でコーディネートされています。シンプルさやすっきりとした印象からあふれる、清潔感も魅力のひとつ。素敵な空間にはどんな物語があるのでしょう。まずは、インテリアのテーマやキッチンづくりの秘話を教えていただけますか?
maifofoさん「リビングダイニングのインテリアテーマは『ナチュラルモダン』です。キッチンは、内装決定時に木目のもので決めていました。その後カップボードを選ぶとき、微妙に色の違う木目になるより、あえて白の方がきれいかも……と白のカップボードを採用。結果、木目と白のバイカラーで、落ち着きと明るさを兼ね備えたキッチンになったかと思います。吊り戸棚は悩みましたが、収納面で正解でした。そこまで圧迫感も感じていません。」
■玄関との行き来も良好!オープンなバックヤード
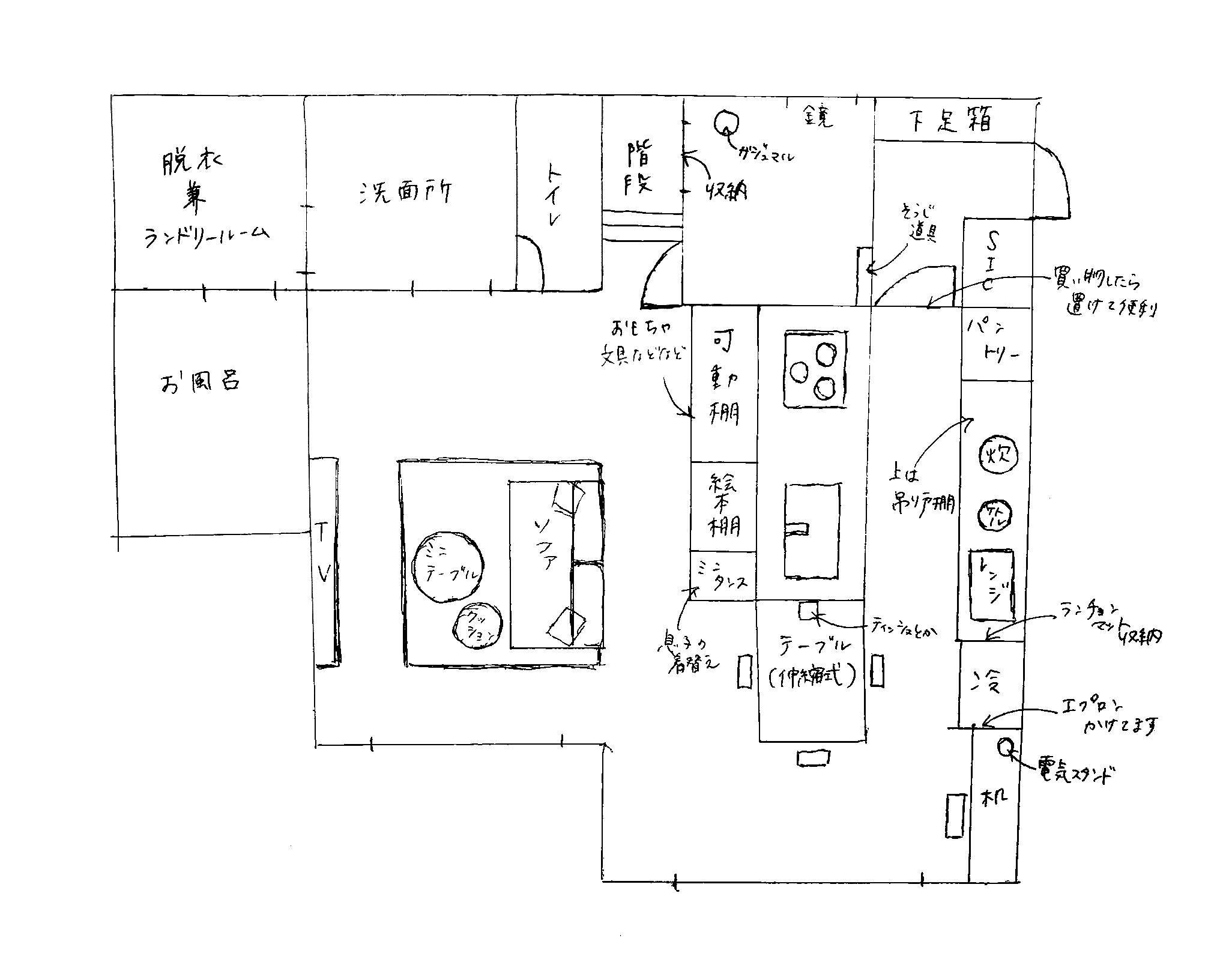
maifofoさんのキッチン、インテリア性も素敵なのですが、間取り図を見るとその機能性の豊かさにも気が付きます。基本はオープンな対面スタイルです。横にダイニングを繋げていたり、背面には吊戸棚やパントリーといった収納が充実していたりと、作業効率やスムーズな動線への工夫が散りばめられているのが特徴。
そしてここからは、maifofoさんにピックアップしていただいた見どころをご紹介していきます。そこには、お気に入りの空間にしていくためのヒントもたっぷり♪さっそくチェックしていきましょう。
■キーワード1 気持ち良く、心地良い白の統一感
「友人に、カップボードやその上に並べている家電類が『白系で統一感がある』と言ってもらえました。前の家からなんとなく白系でそろえていましたが、新築にあたりカップボードを白にしたことで統一感がさらに増したと感じています。電気圧力鍋など、今後取り入れていきたい家電は他にもあるので、引き続き心地の良い統一感をキープしながらそろえていこうと思っています。」
■キーワード2 裏テーマは、チョコミント
「もともとチョコミントが大好きなんです。だからアクセントに少しだけ、ミントカラーも取り入れています。ちなみに、ポットとキッチンペーパーホルダー、パントリー奥の壁にミントカラーは見つけることができます。吊り戸棚やキッチンの木目はココアっぽい色なので、さりげなく裏テーマは『チョコミント』です。
■キーワード3 照明で表現したモダンな雰囲気
「ナチュラルモダンのモダンな部分は、照明器具の色味で表現しています。ダクトレールは黒、そこからぶら下がるスポットライトとペンダントライトはチャコールグレーの同じシリーズのもので合わせました。一部に木目が入っているデザインなので、重すぎず、でも全体の雰囲気はキュッと引き締めてくれます。リモコンで調光調色できるようにしたため、ダクトレールで繋がってますが、用途に合わせて照明を変えられて便利です。」
キッチンをもっと素敵にするためのアドバイスがあれば教えてください
maifofoさん「テーマや色の統一感を意識すると、居心地の良いキッチンになるように思います。私もまだまだ、直したいところや取り入れたいものがたくさんあります。楽しみながら、より良いキッチンを目指していきたいです。」
まとめ: 小さなキラキラが増えていく幸せと楽しみ
キッチンに限らず、空間をつくっていくとき、テーマや色合い、トーンといった何かしらの方向性を決めてから取り組むと、まとまりが出しやすいと思います。ただ、それはあくまでも大枠。いうなれば、背骨のような全体を支える芯です。人がファッションやメイクを楽しむように、そこに少しずつ、さりげなくお気に入りをまとわせていくことで、個性や『らしさ』が宿っていきます。
maifofoさんのキッチンづくりも、まだ途中だと話してくれました。きっとこれからも、キラキラと小さな輝きが少しずつ増えていくに違いありません。それらは写真のサンキャッチャーが生む光の粒のように、いつだって違う表情、違うワクワクをもたらしてくれるはずです。素敵ですよね♪ぜひ引き続き、そっと好きが増えていくmaifofoさんのキッチンに注目しながら、そのアイデアや工夫、こだわりを参考にしてみてください。
執筆:RoomClip mag 編集部
![LDK (エル・ディー・ケー) 2024年10月号 [雑誌]](https://m.media-amazon.com/images/I/61-wQA+eveL._SL500_.jpg)
![Casa BRUTUS(カーサ ブルータス) 2024年 10月号[日本のBESTデザインホテル100]](https://m.media-amazon.com/images/I/31FtYkIUPEL._SL500_.jpg)
![LDK (エル・ディー・ケー) 2024年9月号 [雑誌]](https://m.media-amazon.com/images/I/51W6QgeZ2hL._SL500_.jpg)




![シービージャパン(CB JAPAN) ステンレスマグ [真空断熱 2層構造 460ml] + インナーカップ [食洗機対応 380ml] セット モカ ゴーマグカップセットM コンビニ コーヒーカップ CAFE GOMUG](https://m.media-amazon.com/images/I/31sVcj+-HCL._SL500_.jpg)



