RoomClipに登録された新しいユーザーさんの中から、毎回お一人をピックアップしてご紹介する本連載。今回はシンプルなベースづくりにこだわったお住まいで、機能的で快適な毎日を送るyoriさんの暮らしをご紹介します。
今回ご紹介するのはこの方です!
yoriさん40代で初子、突然沸いた新築計画。設計から完成まで半年という、短いスパンで建てました。時間がない中、使い勝手重視でいったため、インテリアに時間をかけることはあまりできませんでした。これからどんどん、色々なアイテムを増やしていければいいなぁと思ってます。
変化に柔軟で、変化が楽しみになる住まい
■白くシンプルに、軽やかに効率よく
yoriさんのお住まいは、2階建て4LDKの間取りです。白を基調に、すっきりとシンプルにまとめ上げられたインテリアは、どこか無垢なキャンバスを思わせます。
お気に入りの場所は『キッチンと並べたダイニングテーブル』とyoriさん。リビングを見渡せるし、ほぼ座ったまま色々なことができるのがその理由だと話してくれました。例えば、ゴミ箱が近かったり、テレビが見られたりと、日常のちょっとした動作のしやすさがここには集合しているのだそう。冷蔵庫も近いし、テーブルとキッチンの境界に作られたニッチには、コンセントとペンダントライトのスイッチもあるから『疲れて動きたくないときにぴったりなんです』とyoriさんは語ります。
■淡泊に終わらせない秘訣
そんな、テーブルの手元で操作できるペンダントライトはこちらです。白くシンプルなインテリアの印象を邪魔せず、でもなんだかいい具合にアクセントをつけてくれる絶妙な存在でもあります。黒×真鍮×ガラスのライトは、点灯すると上品でかっこよく、さりげない高級感をまとうのが素敵なところ。yoriさん宅が、シンプルだけれど淡泊に終わらないのは、こうしてちょっとしたアクセントをきちんと利かせていることにあると感じました。
そしてそれは照明だけではありません。リビングの窓に掛けられたブラインドの優しい表情、壁のところどころで見つけられる『遊び心』など、改めてじっくりと見渡してみると想像以上にたくさんの仕掛けと出会うことができます。壁の遊び心は、こちらの写真の他にもいくつかあるので、ぜひ探してみてくださいね♪
■今しかない景色を大切に
また、子どものいる暮らしならではの景色があるのも、yoriさん宅のあたたかくて優しい雰囲気の源のひとつかなと思います。お子さんのグッズをオープン収納にしているのは、身支度の効率を上げるためかもしれません。でも、その工夫すらも『今しかない貴重な景色』ではないでしょうか。服もおもちゃも、絵本も、著しい成長と共に驚くほどのスピードで入れ替わっていくはずです。その変化ごとインテリアの一部になっていればこそ、見逃すことなく存分に楽しむことができます。
お子さんのグッズが収まる場所は、実は階段下でした。インテリアのシンプルさ、白さを損なわないように、リビング階段がハイドアで仕切られていたんです。この上に続く空間や暮らしも気になるところですが、今回はここまで。ぜひ引き続き、無垢なキャンバスのようなお住まいに、yoriさんが日々描き加えていく、描き変えていく素敵な景色に注目してみてください。
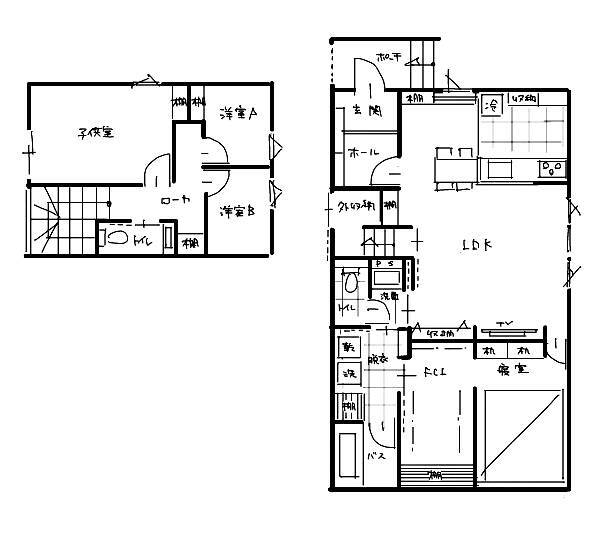
yoriさん邸の間取り図
yoriさん宅は2階建て4LDKの間取りです。広くとったリビングや、ファミリークローゼットを介して家事動線と繋がる寝室など、1階で今の暮らしのほとんどがまわるレイアウトになっているのが特徴的。ちなみに2階にある3つのお部屋は、お子さんの成長やライフスタイルの変化に合わせて、そのときのちょうどいいを探りながら在り方を変えられるようになっています。
yoriさんのお部屋ギャラリー
クリックすると大きいサイズでみることができます。
執筆:RoomClip mag 編集部
![LDK (エル・ディー・ケー) 2024年10月号 [雑誌]](https://m.media-amazon.com/images/I/61-wQA+eveL._SL500_.jpg)
![Casa BRUTUS(カーサ ブルータス) 2024年 10月号[日本のBESTデザインホテル100]](https://m.media-amazon.com/images/I/31FtYkIUPEL._SL500_.jpg)
![LDK (エル・ディー・ケー) 2024年9月号 [雑誌]](https://m.media-amazon.com/images/I/51W6QgeZ2hL._SL500_.jpg)




![シービージャパン(CB JAPAN) ステンレスマグ [真空断熱 2層構造 460ml] + インナーカップ [食洗機対応 380ml] セット モカ ゴーマグカップセットM コンビニ コーヒーカップ CAFE GOMUG](https://m.media-amazon.com/images/I/31sVcj+-HCL._SL500_.jpg)



