RoomClipに登録された新しいユーザーさんの中から、毎回お一人をピックアップしてご紹介する本連載。今回は、リノベーションで夫婦ふたりのこれからを充実させる住まいを手に入れたtukimiさんをご紹介します。
今回ご紹介するのはこの方です!
tukimiさん私たちは再婚中年夫婦です。お互いの子どもたちは独立し、これからは自分たちのペースで趣味や仕事をしながら生活していこうと思っていたとき、築50年のこの家に出会いました。古臭くて、でもどこか懐かしい実家感のあるこの家で何ができるのか、毎日試行錯誤して楽しんでいます。
幸せな毎日のつくり方
■夫婦が寄り添える、明るくて優しい空間
埼玉県在住のtukimiさんご夫婦のお宅は、築50年の中古物件をリノベーションした2階建て2LDKです。暗くならないようにと、内装は全体的に優しくて趣きのある白が基調。それでも暗くなりがちな玄関は、隣り合う空間との壁に室内小窓を取り付けて採光を確保されています。
モールガラスが可愛らしい印象の室内小窓は、大工さんが穴を開け、ご主人が枠を組み立て、ガラスの枠はtukimiさんが塗装するという、手づくり仕様です。だからこその素朴な風合いが玄関に明るさだけでなく、あたたかな雰囲気も与えていますね。
玄関をあがってすぐの扉を開けば、夫婦ふたり暮らしにちょうどいいキッチン&ダイニングが待っています。向かい合って食事や会話を楽しめるコンパクトなテーブルは、ご主人によるDIYとのこと。そしてその脚部分に採用されているガラスブロックは、リノベーション前、玄関の扉横に嵌め込まれていたものを再利用されたそうです。こうしてその家ならではの素材を使った暮らしづくりができるのも、リノベーションだからこその醍醐味だと感じました。(※写真2枚目はリノベーション前の玄関の様子)
■アクセントと彩りは、お気に入りのガラスで
キッチン&ダイニングから振り返ると、変則的にリビングとさらに奥に続くスペースを見通すことができます。もとは4DKの間取りであったところを、部屋数を減らすリノベーションで間仕切りをなくし、ゆったりと広げているから叶う眺めです。
窓という意味では、扉や壁に付いているステンドグラスの小窓もtukimiさん宅の特徴のひとつです。採光取りという目的もありますが、白を基調とした中にレトロな鮮やかさが冴えて、良いアクセント効果を発揮しています。特に、こちらの壁のステンドグラスは、奥に続くtukimiさんの『工房(趣味の工作スペース)』のアクセントクロスと周囲の空間を繋ぐ、絶妙な中和剤になっているのが秀逸。
■何気ない瞬間、普段通りにときめきを
大好きな工作時間に、大好きな色に囲まれて没頭できる『工房』は、もちろんtukimiさんのとっておき空間です。でも、もうひとつ同じくらいこだわりがあると話してくれたのが、こちらの洗面スペース。ひと目でその理由に気が付いた方もきっといるはずです。タイルのシンクボウル……可愛いですね♡気に入ったガーデン用のアイテムを、物件購入後すぐに入手して取り入れたそうです。それに合うように選んだ鏡や、環境を整える棚もご夫婦で設置されています。
可愛いタイルシンクをはじめ、お気に入りが詰まったこの場所だから、身支度や歯磨きといった『普段の動作』をする時間も幸せなひと時になるとtukimiさん。
tukimiさんご夫婦は、ふたりで過ごすこれからの毎日を思って家づくりをされています。間取り、家具のサイズやレイアウト、仕様、さまざまなところにそのためのこだわりが散りばめられていました。他にも、空間ごとの色使いやレトロポップなアイテム、自ら調達した設備といった見どころも盛りだくさんです。今回ご紹介できたのは、その内のほんの一部に過ぎません。ぜひ、引き続き注目してみてください。
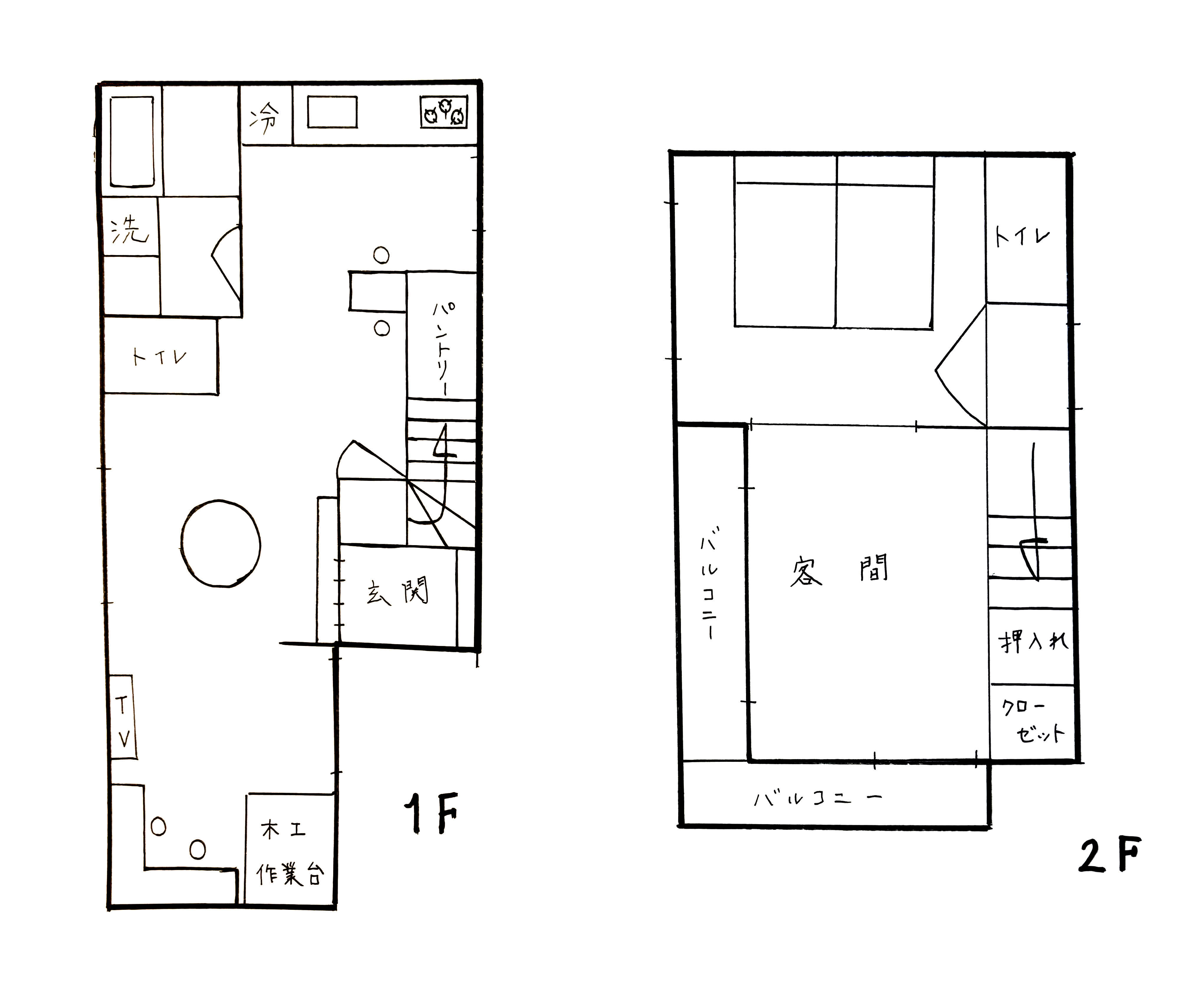
tukimiさん邸の間取り図
tukimiさん宅は、2階建て2LDKの間取りです。もともとは4DKであったところを、暮らしに合わせてリノベーション。部屋数を減らし、空間同士を繋げることで、より広く見通し・風通しの良い住まいに仕上げられています。
tukimiさんのお部屋ギャラリー
クリックすると大きいサイズでみることができます。
執筆:RoomClip mag 編集部
![LDK (エル・ディー・ケー) 2024年10月号 [雑誌]](https://m.media-amazon.com/images/I/61-wQA+eveL._SL500_.jpg)
![Casa BRUTUS(カーサ ブルータス) 2024年 10月号[日本のBESTデザインホテル100]](https://m.media-amazon.com/images/I/31FtYkIUPEL._SL500_.jpg)
![LDK (エル・ディー・ケー) 2024年9月号 [雑誌]](https://m.media-amazon.com/images/I/51W6QgeZ2hL._SL500_.jpg)




![シービージャパン(CB JAPAN) ステンレスマグ [真空断熱 2層構造 460ml] + インナーカップ [食洗機対応 380ml] セット モカ ゴーマグカップセットM コンビニ コーヒーカップ CAFE GOMUG](https://m.media-amazon.com/images/I/31sVcj+-HCL._SL500_.jpg)



