株式会社吉匠建築工藝の代表取締役社長・吉川宗太朗氏が、特許を取得した3Dスキャン技術を活用した新たな計測方法と、アート作品としても高く評価される美しい現況保存図面〈群拓〉について講演しました。

[画像1: https://prcdn.freetls.fastly.net/release_image/148045/11/148045-11-8ce1746adbbbefc2b8a7e2642c385728-720x401.png?width=536&quality=85%2C75&format=jpeg&auto=webp&fit=bounds&bg-color=fff ]
TrimbleのCEOであるRob Painter氏と握手する吉川宗太朗代表.

株式会社吉匠建築工藝の代表取締役社長・吉川宗太朗氏が米国企業「Trimble」が開催するイベント〈Trimble Dimensions 2025〉に登壇しました。

株式会社吉匠建築工藝(以下「吉匠」)の代表取締役社長・吉川宗太朗氏が、アメリカのグローバルテクノロジー企業「Trimble」が主催する国際カンファレンス〈Trimble Dimensions 2025〉に登壇しました。
このイベントは、測量・建設・インフラ・デジタルツイン分野における世界最先端の技術と知見が集結する、Trimble最大級の国際イベントです。

吉川氏は、日本人として初めて登壇する快挙となった昨年の〈3D Basecamp 2024 at Dimensions〉に続き、今年も米国ラスベガスにて2025年11月10日から12日にかけて開催された同イベントに招かれ、通算3度目となる登壇を果たしました。
世界各国から集まる技術者や研究者、業界リーダーが集うこの舞台において、継続して登壇する日本人は極めて稀であり、日本の伝統建築と最先端デジタル技術を融合させた取り組みが、国際的に高く評価されていることを物語っています。
[画像2: https://prcdn.freetls.fastly.net/release_image/148045/11/148045-11-dcba42bb8033634185f668fded155122-720x909.png?width=536&quality=85%2C75&format=jpeg&auto=webp&fit=bounds&bg-color=fff ]
〈Trimble Dimensions 2025〉に登壇する吉川宗太朗代表

イベント会場では、吉匠建築工藝が取り組む3Dスキャン技術を活用した日本の伝統建築の現況保存手法についての講演が行われました。

「社寺建築や文化財といった千年単位の時間を刻んできた歴史的な建築物を、いかに正確に、どのように未来へ伝えていくのか」

その問いに対し、吉川氏は実際の保存事例や制作工程を交えながら、受け継がれてきた職人の技と最先端のデジタル技術を融合させた独自のアプローチ方法を紹介しました。

また、3Dデータをもとに和紙へと刻み出す独自の表現手法〈群拓〉についても発表が行われ、建築保存技術でありながらアート作品としても高く評価されている点が大きな注目を集めました。
会場には、この〈群拓〉の発表を特に楽しみに来場された参加者も数多く見られ、日本建築の美しさが精緻なアート作品として昇華されるプロセスに、熱心に耳を傾ける様子が印象的でした。


日本の伝統建築が最新の3D技術と和紙という素材を通じて新たな価値を獲得し、世界の舞台で語られる――。ラスベガスで開催された〈Trimble Dimensions 2025〉における吉川氏の登壇は、日本発の建築保存とアートの可能性を、国際社会へと力強く発信する象徴的な機会となりました。
〈Trimble Dimensions 2025〉とは
[画像3: https://prcdn.freetls.fastly.net/release_image/148045/11/148045-11-16628a9b2b2cece6bb16eb74380b3421-720x387.png?width=536&quality=85%2C75&format=jpeg&auto=webp&fit=bounds&bg-color=fff ]
〈Trimble Dimensions 2025〉のベネツィアンリゾート内ホール会場

〈Trimble Dimensions 2025〉は世界各国から最新技術や最新知識の活用事例が集う、アメリカに本社を置く大手グローバル企業「Trimble(トリンブル)」主催の国際カンファレンスです。
Trimbleは高精度な測量機器や建設・土木・インフラ向けソフトウェアを開発・提供する企業であり、このイベントはTrimbleが世界最大規模で開催する年次ユーザーカンファレンスとして知られています。


このイベントでは、Trimble製品の最新技術・ソリューションの紹介やワークフローの最適化手法、産業横断的なデジタルトランスフォーメーションの実践例など、さまざまなテーマで約600~500以上のセッションが実施され、開発者・技術者・ユーザー・業界リーダーが一堂に会します。
Trimbleの提供するハードウェアからクラウドベースのソフトウェア、さらにAI統合による次世代のスマートワークフローまでを網羅する講演・ワークショップを通じ、参加者は実務に直結する高度なノウハウを得ることができます。

世界各地から集まる参加者数は毎年増加傾向にあり、直近の2024年版では7,000人以上の参加登録が報じられています。
2025年版については公式の最終発表がまだ完全には出そろっていませんが、複数情報から少なくとも4,000人を超える規模になる見込みです。

今年もTrimble Dimensions 2025では、世界中から参加した技術者・スペシャリスト・ユーザー・経営者が一堂に会し、最先端技術を実務でどう活用していくかをテーマに、数多くのセッションや交流の機会が提供されました。
Trimbleの最新戦略・製品ロードマップの共有だけでなく、参加者同士のネットワーキングも充実し、技術コミュニティがグローバルに交差する場として高い評価を受けている国際イベントです。
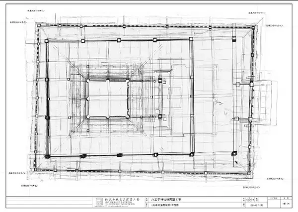
3Dスキャン技術を活用し自ら取得した点群データをもとに作成する、これまでにない高精度の現況保存図面
[画像4: https://prcdn.freetls.fastly.net/release_image/148045/11/148045-11-8aec2fd4e43174bc0031d2b664e97d6b-720x510.png?width=536&quality=85%2C75&format=jpeg&auto=webp&fit=bounds&bg-color=fff ]
最先端の3D技術を活用した革新的な技術による高精度な現況保存図面

今回の登壇で、建築物の現況保存方法として革新的な技術を提案した吉匠は、社寺建築や文化財修繕のエキスパートとしてだけではなく、従来の測量方法では計測が困難であった建築物の床下から小屋裏までを3Dスキャン技術で計測し、精度の高い現況保存図面を作成するパイオニアとしても注目されています。

吉匠が特許を取得した、3Dスキャナーを活用した新たな計測方法で取得した点群データをもとに作成する図面は、正確な現況保存図面としてデジタルアーカイブ化されます。
このデジタルアーカイブは、歴史ある建築物や文化財の「今」を後世に遺す画期的なツールとなり、経年劣化や災害による損壊が起きた際には、デジタルアーカイブのデータによる精密な図面をもとに、迅速な復興が可能となります。


【吉匠建築工藝がT&I 3D 株式会社と共同で取得した特許についての紹介動画はこちら】
https://www.youtube.com/watch?v=EsiTbF0IQ3s
[動画1: https://www.youtube.com/watch?v=EsiTbF0IQ3s ]

近年では、吉匠が作成するこれまでにない精度の現況保存図面の仕上がりに、国内に留まらず国外からの図面作成依頼も増えています。
[画像5: https://prcdn.freetls.fastly.net/release_image/148045/11/148045-11-85ebec48d760467c270a1bc7068e013c-720x626.png?width=536&quality=85%2C75&format=jpeg&auto=webp&fit=bounds&bg-color=fff ]
〈群拓〉による屋根伏図
高精度な現況保存図面をアート作品へと昇華する〈群拓(ぐんたく)〉吉匠への注目が集まる理由は、高精度な現況保存図面作成技術だけではありません。
近年、吉匠が独自の手法で作成する建築物の現況保存図面を和紙に印刷した〈群拓〉という作品にも注目が集まっています。


今回の講演では、新たに商標を取得した〈群拓〉についての発表も行われました。


釣った魚に墨を塗りその姿を紙に写す日本の伝統〈魚拓〉をヒントに名付けられた〈群拓〉は、日本建築の現況を魚拓の様にそのままを和紙に出力し保存することができます。

[画像6: https://prcdn.freetls.fastly.net/release_image/148045/11/148045-11-ffd5cafacaec972e3e09faaab470bb2b-720x956.png?width=536&quality=85%2C75&format=jpeg&auto=webp&fit=bounds&bg-color=fff ]
〈群拓〉を持つTrimbleのCEOであるRob Painter氏と吉川宗太朗代表

歴史ある日本建築の精緻で美しい現況保存図面は、和紙に印刷され〈群拓〉となることで、建築資料としてだけではなくアート作品としても高く評価され、リリース前から多数の予約があり入手には数ヶ月を要する程でした。
吉匠でしか手に入れることのできない、伝統技術と最新技術が融合してできた〈群拓〉を求めて、イベント会場でも多くの問い合わせがありました。

【吉匠建築工藝の「群拓」についての紹介動画はこちら】
https://www.youtube.com/watch?v=_CFZ6Fq8Y44
[動画2: https://www.youtube.com/watch?v=_CFZ6Fq8Y44 ]

3D技術を活用した日本建築の「今」を後世に遺す取り組み
[画像7: https://prcdn.freetls.fastly.net/release_image/148045/11/148045-11-a671fc2e9e79a0d0d4ac41a6f33639fa-698x407.png?width=536&quality=85%2C75&format=jpeg&auto=webp&fit=bounds&bg-color=fff ]
吉匠建築工藝が取得した特許について紹介する動画の一部キャプション

「伝統と技術の架け橋」をテーマとした今回の講演では、点群編集ソフト「Real works」や3DCADソフト「SketchUp」を普段どのように活用しているかについての解説を初め、3Dスキャナーと両ソフトの可能性についてのより実践的な使い方が図解と共に詳しく紹介され、吉匠による日本の木工技術と「Trimble」の 3Dスキャン技術の融合についての取り組みが世界に向けて発信されました。

実際に点群データを生成した具体的な事例紹介もあり、日本建築の現場において最新の3Dスキャン技術がどのように活用され、伝統建築を後世に遺す取り組みが進んでいるかについての報告が成され、会場から多くの注目を集めました。

今回の登壇では、これまで社寺建築や文化財修繕の分野において日本の伝統技能を守り受け継いでいくことに尽力してきた吉匠の、伝統技術と最新技術を融合させた取り組みが高く評価され、最先端の技術を駆使した革新的な活動により、日本建築の伝統と美しさを未来へと継承するための道筋を指し示すものとなりました。
株式会社 吉匠建築工藝 について
株式会社 吉匠建築工藝は、社寺建築、文化財、祭り屋台、古民家、伝統的工法住宅の設計・施工・修理を行なっています。
昭和50年に八王子市で創業し、高い技術力で数多くの建物を施工してきました。
またNikon Trimble社の最新3Dレーザースキャナーを用いた最先端の3D点群測量を行っております。
日本建築の現況保存図面「群拓」を残す活動にも力を入れており、その功績については各種メディアでも取り上げられています。
[画像8: https://prcdn.freetls.fastly.net/release_image/148045/11/148045-11-02c22f70dd82a874d6d86b1e1663fc88-535x402.jpg?width=536&quality=85%2C75&format=jpeg&auto=webp&fit=bounds&bg-color=fff ]
株式会社 吉匠建築工藝

株式会社 吉匠建築工藝のHPはこちら
https://www.yoshisho.com/

株式会社 吉匠建築工藝の公式インスタグラムはこちら
https://www.instagram.com/yoshisho_hachioji/
[画像9: https://prcdn.freetls.fastly.net/release_image/148045/11/148045-11-2b4303b9ad647c1e017a0657ce3615b1-145x147.jpg?width=536&quality=85%2C75&format=jpeg&auto=webp&fit=bounds&bg-color=fff ]
株式会社 吉匠建築工藝の公式インスタグラムQRコード

参考プロモーション動画はこちら

Trimble社 公式
https://www.youtube.com/watch?v=A4r8zOVnbZc&t=77s

Nikon Trimble社 公式
https://www.youtube.com/watch?v=32nVRVfvH2k


【会社概要】
社名:株式会社 吉匠建築工藝
本社所在地:東京都八王子市川口町3555
代表取締役:吉川宗太朗
事業内容:社寺建築、文化財、祭り屋台、古民家、伝統的工法住宅の設計・施工・修理
     3D測量点群測量・モデリング企業プレスリリース詳細へ : https://prtimes.jp/main/html/rd/p/000000011.000148045.htmlPR TIMESトップへ : https://prtimes.jp
編集部おすすめ