ニューヨークには、世界の億万長者が好んで住んでいる通りがいくつかあります。その最たる通りの名は、「Billionaires’ Row(ビリオネアズ・ロウ)」。
なぜここがそのように富裕層の人々から関心を向けられているのでしょうか。この通りの一角に今年新築されたばかりのマンションを特別に内見させてもらいながら、不動産専門家に話を聞きました。
NYのビリオネア通り(億万長者通り)って?
ニューヨーク・マンハッタンのセントラルパークからほんの2ブロック南にある東西に延びる通り、「ビリオネアズ・ロウ(億万長者通り、ビリオネア通り)」は、実業家や投資家、セレブなど世界中の富裕層が好んで売買する高級物件が集まっており、富の象徴となっています。
(写真提供/7w57)
この通りには以前より、お金持ち御用達の高級老舗デパート「Bergdorf Goodman(バーグドルフ・グッドマン)」や「Nordstrom(ノールドストローム)」、ルイ・ヴィトン、シャネルなど世界を代表するハイブランド店が点在しています。この通りが住居や投資物件としてビリオネアや投資家の関心を集め始めたのは、かれこれ13年ほど前にさかのぼります。
2009年、当時としては市内でもっとも高層のコンドミニアム「One57 (ワン57)」がこの通りに着工され、14年に完成しました。これに続けとばかりに、11年には、それよりもさらに高層(当時、市内で一番高い住居用)ビルとして85階建ての「432 Park Ave.(432パークアベニュー)」もこの通りに着工され、15年に完成。それを機にビリオネアズ・ロウはゆうに80フロアを超える縦に細長い超高層ビルの建設ラッシュが続き、「Race to the Sky(空に向かった競争)」として活気付きました。現在は8棟ほどの超高層タワーマンションが立ち並んでいます 。
「432 Park Ave.」(写真撮影/安部かすみ)
縦に細長いビルが立っている通りが、ビリオネアズ・ロウになる(写真撮影/安部かすみ)
「マンハッタンの57丁目は、不動産市場の動きを注視する目の肥えた(実業家や投資家などの)世界中のバイヤーたちを魅了する超高層のラグジュアリーなコンドミニアムが集合したことで『ビリオネアズ・ロウ』という称号(呼び名)で呼ばれるようになりました。ここ10数年以上にわたって販売記録を更新し続けています」と説明するのは、米不動産大手コーコラン社のライセンス・セールスパーソン、ジョアンナ・パッシュビー(Joanna Pashby)さん。
432パークアベニューには一時期、女優のジェニファー・ロペス氏が当時の婚約者、アレックス・ロドリゲス氏と共にペントハウスを購入し話題になるなど、セレブも多くこの通りに物件を所有するようになりました。
またほかにも、イギリスの歌手スティング(Sting)ほか、デル(DELL)の創設者、マイケル・デル(Michael Dell )氏、アリババの共同創設者、ジョセフ・ツァイ(Joe Tsai)氏、HGTVネットワークの創設者、ケニス・ロウ(Kenneth Lowe)氏、日本の女優、松居一代氏など世界のそうそうたる富裕層がビリオネアズ・ロウに物件を購入したことが、メディアなどで報じられています。
特にデル氏が2015年に購入したワン57の最上階2フロアにわたるペントハウスの価格は、100.47ミリオンドル(1ドル130円計算で130億円超え)。市内で販売された最も高額なアパートとして話題をかっさらいました。
57丁目には、超高級の老舗デパート「Bergdorf Goodman」(写真)や「Nordstrom」、世界のハイブランド店などが軒を連ねる(写真撮影/安部かすみ)
ビリオネアズ・ロウの5分圏内には、広大で緑豊かなセントラルパークが広がり、四季折々のレクリエーションが楽しめる(写真撮影/安部かすみ)
新築の「7w57」にいざ潜入
パッシュビーさんが次に注目するのは、ビリオネアズ・ロウの五番街と六番街の間に新築されたコンドミニアムの「7w57」です。
7w57は今年春に完成したばかりの、20階建て高級アパートメント(コンドミニアム)です。
「15戸のコンドミニアム(15家族分の住居物件)があり、ペントハウスは2フロア(この2フロアもカウントすると、ビル自体は22階建てということになる)で、セントラルパークを望む屋外スペースもあるんです」とパッシュビーさんは案内してくれます。
米コーコラン社のライセンスセールス、パッシュビーさん(写真撮影/安部かすみ)
7w57の外観(写真提供/7w57)
ロビー。当地の高級物件では言わずものがなの、24時間ドアマンサービス(写真提供/7w57)
パッシュビーさんは、まず6階の2ベッドルームのお部屋から案内してくれました。
ニューヨークの高級物件で、特にコロナ禍以降の需要が高いプライベートエレベーターが、このアパートメントにも備えられています。プライベートエレベーターを降りると、アート作品が飾られたギャラリー風の長くてゆったりとした廊下の向こうに、広々とした豪華なリビングルームが広がっています。全面ガラス一面に映し出された57丁目の通りの景色自体が、まるで「アート作品」のようです。
窓全体がアート作品のような、6階のリビングルーム(写真提供/7w57)
リビングルームから57丁目のビリオネアズ・ロウを見下ろす(写真撮影/安部かすみ)
(写真撮影/安部かすみ)
6階の住居スペースは、1723スクエアフィート(約160平米)の面積に2ベッドルーム(寝室)、2.5バスルーム(浴室とトイレ)、リビング兼ダイニングルーム、キッチンエリアなどを含む5部屋が完備されています。
(画像提供/7w57)
6階のキッチンスペース。洗浄機が備えられているのはもちろん、「料理の煙を換気扇がすぐにキャッチし吸い取ってくれ、キャビネットには指紋が付きにくいんですよ」と、使い勝手がいいように細かい部分まで配慮されています(写真提供/7w57)
キッチンスペース(写真提供/7w57)
ホテルのような、バスルーム(写真提供/7w57)
(資料提供/7w57)
ベッドルーム(写真提供/7w57)
もう一つのベッドルーム(写真提供/7w57)
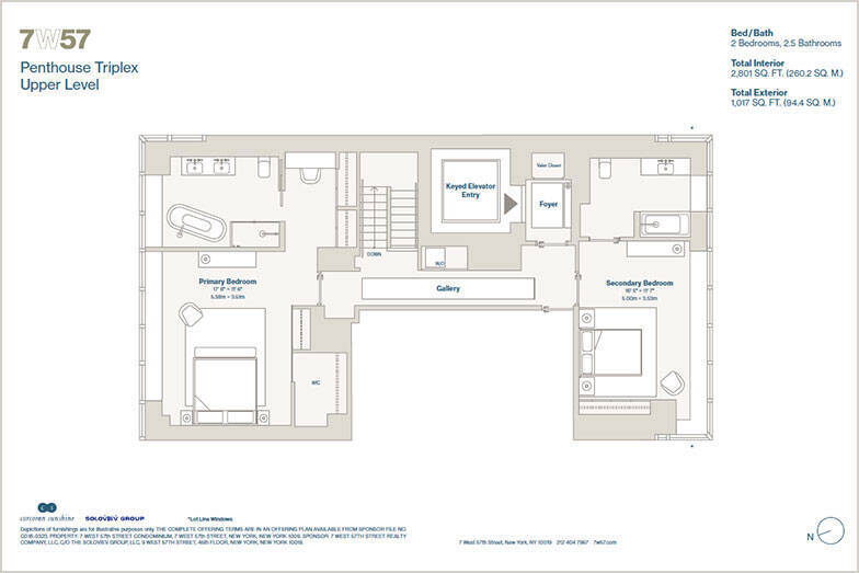
また最上階の2フロアと屋上テラスで展開するペントハウスは、2801スクエアフィート(約260.2平米)の面積に、2ベッドルーム(寝室)やリビング兼ダイニングルーム、キッチンエリアなどを含む5部屋に、2.5バスルーム(浴室とトイレ)などに加え、セントラルパークを眼下に望む広い屋外スペース(北と南の2カ所、1017スクエアフィート(約94.4平米)なども完備されています。
ローワーレベル(下階)(画像提供/7w57)
アッパーレベル(上階)(画像提供/7w57)
テラス(屋外スペース)(画像提供/7w57)
ペントハウスのリビングルーム(写真提供/7w57)
ペントハウスのベッドルーム(写真提供/7w57)
ペントハウスのベッドルーム(写真提供/7w57)
ペントハウスのキッチン(写真提供/7w57)
ペントハウスのバスルーム(写真提供/7w57)
ペントハウスの北側に位置する屋外スペース。ここと別に南にも屋外スペースがあり、専用のキッチンやお手洗いスペース、ストレージ(倉庫)などを完備(写真提供/7w57)
目の前は豪華なセントラルパークとアイコンビルのザ・プラザ(プラザホテル)。四季折々の季節がここから楽しめる(写真提供/7w57)
問い合わせは国内外の富裕層からきているとのこと。コロナ禍3年目でさらに不動産市場が活気付いているニューヨークで、このような超高級物件の需要は相変わらず高いようです。
住居用としてもそうですが投資先としてもますます目が離せないビリオネアズ・ロウ。「Race to the Sky(空に向かった競争)」は、今後もさらに活気付いていきそうです。
●取材協力
7w57
※記事中の部屋情報
6階
$3,950,000(1ドル130円計算で約5億1000万円)
5Rooms, 2 Bedrooms, 2.5baths
約1723 平方 ft(約160平米)
ペントハウス
$12.5 million(1ドル130円計算で約16億円)
2 Bedrooms, 2.5 baths
屋内スペース
約2801平方 ft(約260.2平米)
屋外スペース
約1017 平方 ft(約94.4平米)
●関連URL
One57(ワン57)
432 Park Ave.(432パークアベニュー)

![[のどぬ~るぬれマスク] 【Amazon.co.jp限定】 【まとめ買い】 昼夜兼用立体 ハーブ&ユーカリの香り 3セット×4個(おまけ付き)](https://m.media-amazon.com/images/I/51Q-T7qhTGL._SL500_.jpg)
![[のどぬ~るぬれマスク] 【Amazon.co.jp限定】 【まとめ買い】 就寝立体タイプ 無香料 3セット×4個(おまけ付き)](https://m.media-amazon.com/images/I/51pV-1+GeGL._SL500_.jpg)







![NHKラジオ ラジオビジネス英語 2024年 9月号 [雑誌] (NHKテキスト)](https://m.media-amazon.com/images/I/51Ku32P5LhL._SL500_.jpg)
