ここ数年の日本の酷暑は、エアコンなしでは命の危険すら感じるレベル。しかし、年間を通して30度を超える常夏のベトナム・ホーチミン市で、筆者はエアコンなしで驚くほど快適な住宅体験をしました。
エアコンなしでも快適な建築を追求する建築家の自宅兼アトリエを訪問
ベトナム・ホーチミン市を訪れたのは、最も暑さが厳しいとされる雨季は過ぎていたものの、気温は36度。太陽が容赦なく照りつける日でした。
洗濯物や炊事場など人々の日常が広がるベトナムらしいヘム(狭い路地)を、滝のように流れる汗を拭きながら進んでいくと、K59 Atelierナムさん・リンさんの自宅兼アトリエがありました。
(撮影/SUUMOジャーナル編集部)
間口は約4mと、細長いつくり。入口を覆うようにして生えている樹木は1年で4mも成長するとか!(撮影/SUUMOジャーナル編集部)
建物は植物に覆われ、両隣の建物に挟まれるようにして立っています。一見、隠れ家のよう。しかし中に入ってみると、想像以上の開放感。建築面積56平米と決して広くはないのですが、5階建ての吹き抜けになっていて、狭さを感じさせません。
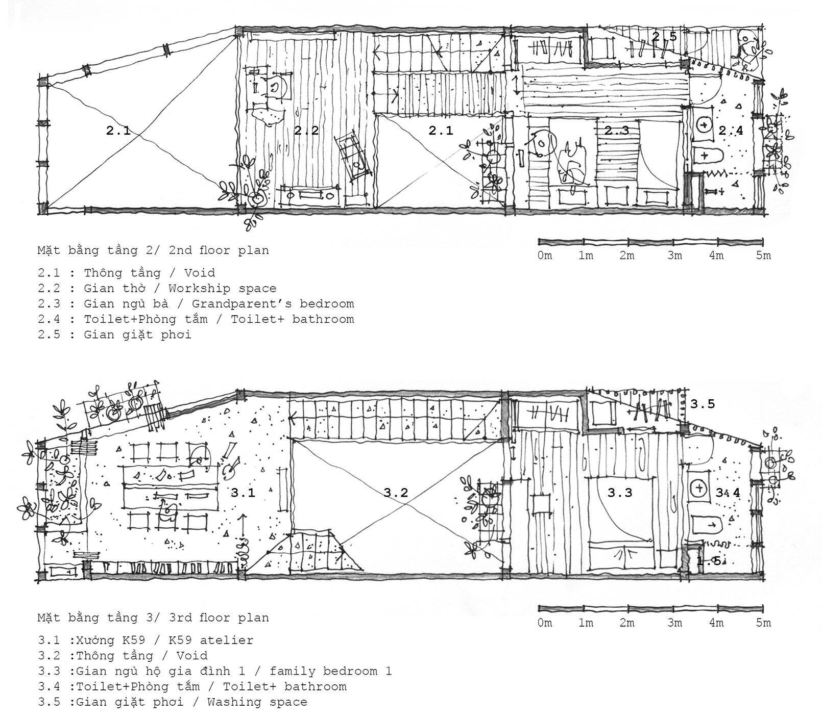
間取図(提供/K59 Atelier)
ナムさん宅の玄関から奥をのぞむ。植物がたくさん配された屋外テラスのような開放的な雰囲気(撮影/SUUMOジャーナル編集部)
屋内は中心部が吹き抜けになっている(撮影/SUUMOジャーナル編集部)
開放感も印象的ですが、何より驚くのはその涼しさです。屋外は36度なのに、入口に入ったとたんにヒンヤリとした心地よさ。体感温度は25度程度でしょうか。
ナムさんとリンさんは、エアコンに頼らず快適に過ごすことを追求している建築家です。目指すのは、「自然と共存し、建築によって風と雨を快適にする住宅」と言います。
ナムさんが生まれたのはベトナム南部に位置するサイゴン(現ホーチミン市)。一年中気温が30度前後で、嵐が少ない安定した気候です。
「実は、特に暑くて風があまり吹かない4・5月以外はエアコンを使用していません。その理由は何か。私たちは、昔ながらの住宅の知恵にあるのではないか、と考えました。そこから、先祖がどのように家を設計していたかを研究するようになりました」(ナムさん)
ナムさん(写真右端)、リンさん(左から2番目)。K59 Atelierのポリシーは、新しいものを設計するのではなく、あくまで「先祖から学び、それを更新し、現代で実現する」こと。主な建材もベトナムおなじみのもの。耐久性が高い「ベトナムで最も安価なレンガの一つ。
研究の結果で分かったのは、100年以上前から、ベトナム南部の住宅は“風”を家の中に巡らせるようにしていたこと。この工夫は、こちらの家でも採用されています。
実際に案内してもらいましょう。
ベトナムの昔ながらの知恵から学んだ「風を活かす」住宅
昔ながらのベトナム住宅から、こちらの家で取り入れられている工夫は主に3つ。
一つめの工夫は、接道の向きと配棟です。
「ベトナムでは昔から、家は南と北に面するように建ててきました。ベトナム南部には雨季(5月~10月)と乾季(11月~4月)がありますが、雨季は南から、乾季は北から風が吹きます。つまり、365日、絶えず家の中に風が吹くようにしているのです」
北側に面した玄関を裏からみたところ。大きくとられた壁一面がほぼ風が通る仕様で、ガラスなども張られていない。もちろん横殴りの雨が降れば開口部から入ってくる(撮影/SUUMOジャーナル編集部)
1階の南側にあるキッチンも風の抜け道(提供/K59 Atelier)
二つ目の工夫は、屋内を開放的な空間にしていることです。
「1階を “庭”のような半屋外の空間にすることで、家全体に風を巡らせやすくしています。トイレや寝室、バスルーム、ランドリースペースといったプライベートな空間を上層階に配置することで、各階の部屋の前面に開放的な空間をつくることができ、そこから風を取り込むことができるのです」
「田舎の家に行くと、まず庭があって、そこから家に入りますよね。1階はいわば“歓迎の庭”でもあるんです」(リンさん)(提供/K59 Atelier)
玄関を入ってすぐのリビングに池が! コンクリート床につくった池で魚が泳いでいて涼しげ(撮影/SUUMOジャーナル編集部)
吹き抜けを囲むように続く階段と、部屋へ続く渡り廊下で構成されている(提供/K59 Atelier)
寝室はエアコンが効く密閉空間としつつも、窓を開ければ吹き抜け部分を通過する涼しい風が流れる(提供/K59 Atelier)
最上階では、渡り廊下(屋内)に洗濯物が風に吹かれて気持ちよさそうに揺れていた(提供/K59 Atelier)
(撮影/SUUMOジャーナル編集部)
風の入口となる開口部は、南側と北側に大きく設けられています。
「入口にある植物が、自然の障壁となって強い風を防いでくれています。また、雨が入るところには蛇腹状(折れ戸)のガラス窓をつけて、明るさを確保しつつ、雨が降ってきたら閉めて防げるようにしています。もちろん、時々は雨が入ってくることもありますが、床も壁も濡れてもよい素材にしていますし、床に傾斜を設けて水を流せるようにしてあるので水が溜まることもありません」
つまり、これが三つ目の工夫。風が入ってくるのをできるだけ阻害せず、強すぎる場合は調整ができるようにしているのです。
ちょうど雨が降ってきたので、蛇腹状(折れ戸)のガラス窓を閉めているところ(撮影/SUUMOジャーナル編集部)
「床排水口をいたるところに設置しました。家の真ん中でも、です。もし大雨で水が家の中に入っても、家具を傷めることなく排水できます」(リンさん)(撮影/SUUMOジャーナル編集部)
窓近くには植物がいっぱい(撮影/SUUMOジャーナル編集部)
雨が入ってくるならば、家の中に雨が入ってもいい環境を。風が吹かない日はサーキュレーターや扇風機で補う……。ナムさんとリンさんは、なるべく自然の力を大切にしながら、人間が心地よい暮らしができる最適解を模索しています。
扇風機などは、あくまで風が足りない箇所の補助として使用(提供/K59 Atelier)
(提供/K59 Atelier)
(撮影/SUUMOジャーナル編集部)
ホーチミン市に拠点を置く、建築設計事務所studio anettai(スタジオ・アネッタイ)の代表・山田貴仁(やまだ・たかひと)さんも「そもそも高気密・高断熱が正義なのか」と投げかけます。
「熱帯化する日本」における快適な住宅って?
日本の伝統的な住宅といえば、風通しの良い木造住宅。1330年代に『徒然草』で吉田兼好が「家の作りやうは、夏をむねとすべし。冬は、いかなる所にも住まる」、と記述していますが、もはや亜熱帯気候と化した昨今の日本は住宅のありようもアップデートすべきとしてSUUMOジャーナルでも、高気密・高断熱住宅の特集をしてきました。
一方で、10年以上ベトナムで暮らしている山田さんや、共同代表の犬童伸浩(いぬどう のぶひろ)さん、設計士の渡邊もえ(わたなべ・もえ)さんは、「実感として、エアコンで空調するよりも、沖縄のように風が抜ける影の下で過ごすほうが気持ちがいい」と言います。
山田さんが風が抜ける影の下が心地いい例として挙げたベトナムにあるハンモックカフェ。影にたくさんのハンモックが吊るされていて、人々がコーヒーを飲んだり、トラックの運転手が休憩する場所として利用されています(写真提供/スタジオ・アネッタイ)
「高気密・高断熱はもちろん大事なのですが、夏の暑さにおいては、超低気密・低断熱の住宅でも日本で快適さをつくり出すことができるのでは、と考えました。
現状、日本はめちゃくちゃ暑い。日本からベトナムに来た友人も『日本の夏のほうが暑い』と言うほどです。今こそ、ベトナムで培った住宅の知恵を日本で活かせるのでは?と思ったのです」(山田さん)
左から、犬童さん、山田さん、渡邊さん。スタジオ・アネッタイは、ホーチミンを拠点に活動する建築設計事務所& 3Dビジュアライゼーションチーム。山田さんと犬童さんが2019年に設立。2人はベトナムの環境建築で有名な建築家・ヴォ・チョン・ギア (Vo Trong Nghia)の事務所に2014年まで勤務していた同期(撮影/SUUMOジャーナル編集部)
例えば、スタジオ・アネッタイが手掛けた「ハウス・イン・バリア・ヴンタウ」プロジェクトは、“超低気密・低断熱な快適さ”を追求した事例。
1000平米もの敷地に、ポツンと一軒家(写真提供/スタジオ・アネッタイ、撮影/大木宏之)
(写真提供/スタジオ・アネッタイ、撮影/大木宏之)
(写真提供/スタジオ・アネッタイ、撮影/大木宏之)
「約300万円と低予算でしたから、簡単な方法で安くつくらなければなりませんでした」と山田さん。
「敷地に向かう車中から延々と続く郊外住宅を観察していたら、“影”をうまく使っていることに気づいたんです。例えば、街中にあるレンガや農業用ネットといったエブリデー・マテリアル(日常使いの素材)を使用することで、影をつくったり、自然の風を取り入れたりして、その空間を自宅のリビングの延長のように使っている。そこに人々が集ったりしているんです。
(写真提供/スタジオ・アネッタイ)
そういうことを、僕らもしてみようと思って。1000平米の広大な敷地に対し、建物の室内空間はわずか60平米(ガラスと壁に囲まれた空間に限定すると45平米)。しかし、柱を 60本ぐらい立てて、そこに施工現場で使われるシートをかけ、影をつくることで、外部空間を生活空間の延長として活用できるようにしたのです。
(写真提供/スタジオ・アネッタイ)
(写真提供/スタジオ・アネッタイ)
また、タープやガラスの屋根、間仕切りできるカーテンなどで『弱い線を重ねる』、つまり自分で調整できる要素をいくつも設置することで、半室内のような空間をつくりました。そうすることで、季節や日差しの変化に合わせて影をつくったり、自然の風を取り入れたりできようになり、『超低気密・低断熱』な住宅でもエアコンに頼りすぎない快適な暮らしができることを目指しました」
(写真提供/スタジオ・アネッタイ、撮影/大木宏之)
(写真提供/スタジオ・アネッタイ、撮影/大木宏之)
窓ガラスやカーテンなどの柔らかな仕切りを、山田さん達は「弱い線」と表現する。「弱い線」を重ねることで、住み手が自分で心地よいと感じるように調整できる、自由度の高い空間にしている(写真提供/スタジオ・アネッタイ、撮影/大木宏之)
ベトナムの知恵を日本でどうアレンジするか
もちろん、ベトナムと日本は気候が大きく異なりますから、ベトナムの知恵をそのまま日本で活かすことは難しいでしょう。ベトナム南部には寒さが厳しい冬は存在せず、台風もほとんど来ません。
夏の熱気を効率的に逃がす通気性を担保しても、冬の寒さを乗り切るための気密性という相反する性能も両立させなければなりません。台風の対策として、建物強度などへの配慮もしなければならないでしょう。
「風が巡る家」を設計したナムさんとリンさんも、「日本で設計をするならば、実際に現地を訪れて、気候、文化、人々の生活を肌で感じる必要がある」と強調します。
山田さん達がベトナムの「ハウス・イン・バリア・ヴンタウ」の知見を活かして提案するのが、日本の郊外住宅向けの設計案です。こちらは東京・横浜に拠点を置くリノベーション会社ROOVICE(ルーヴィス)の新築提案である「新形」の一つとして設計。日本の冬の気候にも対応しながら、ベトナム式の「緩い空気」の快適さを追求。広大な敷地に対し住宅本体は小さく建て、残りの大部分を庭や半屋外空間として活用するというものです。
日本の郊外住宅向けの設計案「熱帯郊外型住宅」(写真提供/スタジオ・アネッタイ)
設計案を3Dビジュアライゼーションしたもの(提供/スタジオ・アネッタイ)
(写真提供/スタジオ・アネッタイ)
(提供/スタジオ・アネッタイ)
ベッドルームなど最低限のプライベート空間は、冬の気密性と夏の暑い空気の逃げ道を両立させた空間として1カ所に収めつつ、その他の部分は庭と一体化させ、内外が入り乱れる緩やかな空間を創出。カーテンや家具なども建築の一部と見なし、居住者が空間を調整できるようにしています。価格は2849万円(税込)+設計料を想定しているとのことです。
日本の環境に適応した機能性と、ベトナムの知恵がコラボレーションした住宅。実現したら、ぜひ訪れて、体感してみたいものです。
まとめ
ナムさんとリンさんの自宅兼アトリエを訪れ、山田さん達の話を聞いて、立ち止まって考えざるを得なかったのは、「本当に心地よい住宅とは何か」ということ。
住宅の気密性、断熱性は、今後の日本には間違いなく必要不可欠なものです。日本の夏には、もはやエアコンは必需品です。
一方で、エアコンがなくても心地よいナムさん宅を訪れた時、筆者が夏の田舎の縁側で吹き抜ける爽やかな風と風鈴の音を思い出したように、日本の昔ながらの住宅ならではの心地よさも存在しているはず。昔の住宅を否定するのではなく、そこから学ぶこと、見直すことも大切だと感じました。
実際に、「パッシブデザイン」と呼ばれる、機械設備に頼らず、その土地の気候や自然エネルギー(太陽光、風、地熱など)を最大限に活用して、快適な住環境をつくる設計思想や緑のカーテンといった活動なども知られてきています。
日本でも、スタジオ・アネッタイの設計案のように、冬の対策として高断熱・高気密が担保されたスペースは確保しつつ、ベトナムのように緩く外とつながり風を心地よく取り入れることができるスペースを住宅に取り入れれば、日本の春夏秋冬の暮らしがもっと心地よく過ごせるようになるかもしれません。
住宅スペースまでいかずとも、もう少しライトな工夫も。扇風機、冷風機、エアシャッターなど、さまざまなアイテムを組み合わせることで涼を生み出すベトナムの習慣は日本とも親和性が高そうです。
「エアコンは、乾燥やカビによる健康被害も懸念されているでしょう。緩い空気の動きを活かすことは、健康被害を減らせるメリットもあると思うんです」と山田さん。確かに、その通りです。
少し暑さがやわらぐこれからの季節、エアコンに頼り切りな生活から、少しずつ風を緩く取り入れるライフスタイルへシフトしてみようと思いました。残暑も少しストレスなく楽しく過ごせそうな気がします。
●取材協力
建築家Nam(ナム)さん&Linh(リンさん)(K59 Atelier)
建築設計事務所studio anettai(スタジオ・アネッタイ)

![[のどぬ~るぬれマスク] 【Amazon.co.jp限定】 【まとめ買い】 昼夜兼用立体 ハーブ&ユーカリの香り 3セット×4個(おまけ付き)](https://m.media-amazon.com/images/I/51Q-T7qhTGL._SL500_.jpg)
![[のどぬ~るぬれマスク] 【Amazon.co.jp限定】 【まとめ買い】 就寝立体タイプ 無香料 3セット×4個(おまけ付き)](https://m.media-amazon.com/images/I/51pV-1+GeGL._SL500_.jpg)







![NHKラジオ ラジオビジネス英語 2024年 9月号 [雑誌] (NHKテキスト)](https://m.media-amazon.com/images/I/51Ku32P5LhL._SL500_.jpg)
