RoomClipユーザーの素敵なキッチンを紹介する「憧れのキッチン」連載。
今回は、個性的なミックススタイルで、落ち着きのある洗練されたインテリアづくりをたのしまれている、ikさん宅のキッチンをご紹介します。
夫婦ふたり暮らしです。終の住処として、中古マンションをスケルトンリノベーション(3LDKから1LDK+)し、3年目を迎えました。旅好きで、時間をつくっては夫婦で旅行へ行きます。でも、どこよりもホッとできるのは、やはり我が家。『私たちらしさ』を、インテリアを通して表現していきたいです。
シームレスにリビングとつながるキッチン
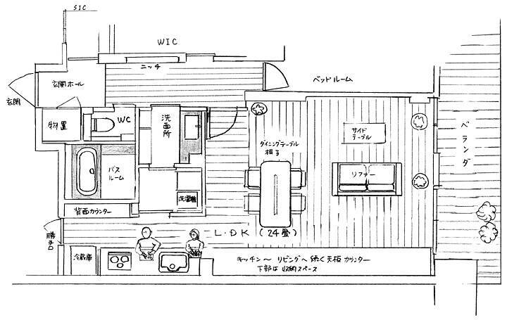
ikさんのお宅は、シックでインテリジェンスな大人の落ち着きをたたえた空間です。キッチンも、そうしたインテリアの延長線上に自然と溶け込むように、洗練されています。なかでも、I型キッチンからリビングまでシームレスに伸びる、大きめのカウンターの仕様は特徴的ですね。まずは、ikさんなりのキッチンづくりへのこだわりや思い入れから教えてください。
ikさん「テーマは『リビングと融合したキッチン』です。そのため、我が家のキッチンは、リビングと一体化した設計になっています。
タイルは、自分たちで取り寄せた平田タイルのカタログの中より、落ち着きあるグレージュのグラデーションでカスタマイズされたものをチョイスしました。
■夫婦の時間を充実させる間取り
LDK全体を通してみると、L字の長辺にあたるI型壁つけキッチンは一見、独立した空間のようにも感じます。でも、リビングまでカウンターを長く伸ばすことで、リビングとキッチンの境界をあいまいにし、一体感のあるLDKとされているんですね。キッチンやカウンターは、ディティールまで丁寧にご夫婦のこだわりが詰まっているため、リビング側での佇まいも抜群。収納家具やテレビ台、ディスプレイスペース、としてマルチに機能しているのも素敵です。
ここからは、こだわりのキッチンに秘められた機能美や、ikさんご夫婦ならではのキッチンづくりの楽しみ方に詳しく迫っていきます。個性的でスタイリッシュなI型壁つけキッチンを目指したいという方はもちろん、キッチン収納の配置や効率にお悩みの方にも嬉しいヒントがたくさん登場しますよ。
■キーワード1 効率よく楽しく、夫婦で作業ができる空間
「料理好きな夫と一緒に作業できるように、カウンターは横長で、まな板もふたつです。ふたりで並んで作業をしても、それぞれのテリトリーで手際よく調理を進めることができます。シンクを挟んでお互いのスペースを取ることで、まな板をそれぞれ使ってもぶつかることがないんです。また、どちらかが後ろを通って冷蔵庫へ行く場合も、進路を妨げることなく食材を取りに行ける広さになっているので快適。
■キーワード2 豊富な収納×作業効率を高める収納法
「カウンター下側や上部、背面カウンター上下と、豊富な収納スペースを設けました。すぐ手の届くところに、調理器具や材料を配置したり、冷蔵庫置き場を隔てる壁には、夫がDIYしたキャニスターラックに使用頻度の高い調味料や乾物を並べたりと、作業効率がさらに上がる収納を心掛けています。
また、リビングに続くカウンターの収納の半分には、カトラリーや食器をしまっています。こうしておくことで、テーブルセッティングにかかるアクション数も格段に減らすことができました。空いたスペースには、出番の少ない調理器具や備蓄用の食料も収めています。」
■キーワード3 少しずつ増えていく、お気に入りの道具たち
「キッチン用品は、毎日目にするものなので、少しづつお気に入りにシフトしていくようにしているんです。お陰で、毎日キッチンに立つのが楽しくなりました♪バルミューダのオーブンレンジは、見るだけで気分を上げてくれるほか、ギターの音色にも癒されます。ネスプレッソやソーダストリームは、エスプレッソと炭酸水好きな夫のお気に入りです。毎日頂くお茶の種類に合わせ、急須や茶筒は、フォルムや素材にこだわりました。最近購入したのは、シンプルヒューマンのダストボックス。インテリアに溶け込むデザインが気に入っていります。また旅土産のalfiのポットもはずせません。少しクラシカルで丸みのあるフォルムは、愛嬌があって使う度に笑みがこぼれます。」
キッチンをもっと素敵にするためのアドバイスがあれば教えてください
ikさん「まずは、どんな形にしていきたいかを想像してみてください。自分の理想を具体的にするには、まわりにあるものや経験を振り返り、『何に自分がときめくのか』を感じ取ることも大切かなと感じます。私の場合は、インテリア本や雑誌、映画や美術館、趣味の旅、人との出逢いなど、たくさんのことからヒントを得ました。今では、日常のささいなひとコマの中にも、自分の好きなものや感性を刺激するものを発見するべく、アンテナを張るようになりました。」
まとめ: 日常にある、ときめきや気づきを見逃さない
ikさんご夫婦のつくり出したキッチンは、ふたりで使う快適性、ふたりで楽しむ『自分たちらしさ』に溢れていました。
ぶつからない広さ、心地よく連携のとれるスペース、お気に入りのものを増やしていくワクワク感……ikさん宅のキッチンは、見た目の素晴らしさはもとより、充実した空気感が漂う魅力的な空間です。ぜひ、キッチンづくりやコーディネートの参考にしてみてください。
執筆:RoomClip mag 編集部
![LDK (エル・ディー・ケー) 2024年10月号 [雑誌]](https://m.media-amazon.com/images/I/61-wQA+eveL._SL500_.jpg)
![Casa BRUTUS(カーサ ブルータス) 2024年 10月号[日本のBESTデザインホテル100]](https://m.media-amazon.com/images/I/31FtYkIUPEL._SL500_.jpg)
![LDK (エル・ディー・ケー) 2024年9月号 [雑誌]](https://m.media-amazon.com/images/I/51W6QgeZ2hL._SL500_.jpg)




![シービージャパン(CB JAPAN) ステンレスマグ [真空断熱 2層構造 460ml] + インナーカップ [食洗機対応 380ml] セット モカ ゴーマグカップセットM コンビニ コーヒーカップ CAFE GOMUG](https://m.media-amazon.com/images/I/31sVcj+-HCL._SL500_.jpg)



