ピンク、薄紫、黄色……カラフルに壁面を塗られた建物群が緩やかな坂道沿いに見えてくる。これらは、長崎を訪れた観光客向けの宿泊施設「長崎坂宿」だ。
中国で都市開発の経験を積むが日本では振るわず。新たな事業モデルに取り組む
改修前の長屋群。古い建物は築100年近くになる。老朽化とともに入居者の高齢化から空き家化が進んでいた(写真:小笠原企画)
丘陵の住宅地、長崎市東小島町にある長屋は、昭和5(1930)年から戦後間もなく(1940年代)にかけて建てられた古い建物だ。老朽化と住民の高齢化によって空き家が目立っていた。空き家になっても、古くてボロボロの借家は次の借り手を見つけるのも困難だ。
こうした長屋は、入居者の退去によって一軒また一軒と歯抜けのように空き家化する。居住者がいる住戸もあり、全体を取り壊しすることや一気にリノベーションすることもままならない。
ひとりの建築家が、この老朽長屋の「再開発」に挑んだ。
その前に、小笠原さんの略歴を紹介する。
小笠原さんは、京都の大学卒業後、設計事務所に勤めるものの、プロジェクトの切れ目に事務所の経営難から仕事を解かれた。そこで26歳のときに設計事務所を立ち上げた。ただ、仕事が軌道に乗らず30歳で廃業。建築雑誌の求人広告で目にとまった中国の都市開発の求人に応募し上海に渡った。上海では、設計にとどまらず、大型ショッピングモールなど時間をかけた都市開発の事業に取り組み経験を積んだ。以後、日本に戻り、ふたたび設計事務所を立ち上げたが、日本では小さな仕事ばかりが続き経営的にも安定しなかった。新たな仕事を獲得するためコンペに挑戦しようにも人手や資金が足りない。ならば自分で仕事をつくり出そうと、事業モデルの構想をはじめたのだという。
小笠原太一さん。長崎坂宿・フロント棟にて(写真:藤本幸一郎)
「再開発」に話を戻す。
「再開発」とは何だろうか。
たとえば、駅周辺の再開発であれば、低層の商店や住宅を取り壊し、駅前交通広場と建物については集約して低層部に商業施設、これと併せて高層のオフィスビルやタワマンが建てられ、ピカピカの街に再生された姿を誰もが目にしたことがあるだろう。
人口減少率は日本で2番目。坂の街・長崎は空き家が増加の一途
長崎市は、半世紀前の1975年に50.6万人で人口はピークとなり、以降減少が続き、2025年には40万人を割り込み、今後も減少は続くという(※1)。さらに長崎市は、全国の県庁所在地のなかで、青森市に次いで2番目に人口減少率が高い縮小都市の代表格でもある(※2)。
2022年9月、西九州新幹線が佐賀県の武雄温泉駅と長崎駅の区間が開通した。2024年10月には長崎駅に近接する三菱重工長崎造船所跡地の再開発により、長崎スタジアムシティ(スタジアム、ホテル、多目的アリーナ、オフィス、ショッピングモールの複合施設)が開業した。
人口減少する地方都市においても、中核となる駅周辺や中心市街地においては、新しい商業テナントやオフィス需要が見込めることから、いまなお再開発が進められる。
しかし、周辺地域・住宅地ではどうだろうか?長崎市は、坂の街で、クルマのアクセスに不便な住宅地も多いことから、空き家は増加の一途をたどっている。
ここで、人口減少社会のパラダイムの転換について、大阪市立大学名誉教授・住田昌二氏が以下のように整理している。
人口増加時代人口減少時代建築・住宅市場フロー市場ストック市場供給方式少品種・大量生産多品種・少量生産供給原理機能・規格化サービス・多様化建設スタイル早く・多くゆっくり・少しずつ資料:住田昌二『現代日本ハウジング史 1914~2006』2015年・ミネルヴァ書房から再構成住田氏によると、人口増加時代と人口減少時代では、建築や住宅産業の枠組みは、上図に示したように大きく転換するのだという。
「長崎坂宿」を「人口減少時代の再開発」という切り口で見ていこう。
空き家解消に「民泊」に活路。都市開発のマスタープランづくりから
この場所は、長崎の中心市街地でアーケード商店街の「浜町」や観光客がよく訪れる「思案橋」から、徒歩15~20分ほど。さらに市電の終着駅、崇福寺駅から緩やかな上り坂を歩いて6~7分のところにある。
長崎の中心地・観光地からほど近いものの、坂の途中の住宅地であり、観光客が足を踏み入れるゾーンではない。
長崎坂宿の計画地。右下に市電の終着駅「崇福寺駅」があり、観光の中心地、思案橋などからも近い(資料:小笠原企画)
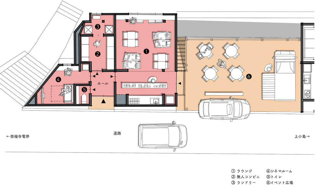
小笠原さんは、この長屋群を空き家であるなしにかかわらず、全体を「計画地」として捉えてマスタープランづくりを行った。市電の終点・崇福寺駅からの坂を上がってきた計画地の端を「フロントデスク・ショップ」に、途中に「民泊」を何軒か配置して、いちばん奥を「レストラン・バー」と位置づけた。計画地内には「メイン広場」「サブ広場」なども意識して描き込んだ。
小笠原さんのアタマの中にあったのは、イタリアで地域に散らばっている空き家を活用して、建物単体ではなく地域一帯をホテルとして活用する「アルベルゴ・ディフーゾ(Albergo Diffuso)」の日本版だという。
また、ゾーニング・施設配置については、上海の事務所時代に経験した大型ショッピングモールの設計思想が役立ったという。
長崎坂宿のマスタープラン。右下の「フロントデスク&ショップ」が市街地に近い低い位置で左側に向かって緩やかな上り坂となっている(資料:小笠原企画)
「この長屋群は、自分の所有物でもなくて、たまたま知り合ったあるひとりの不動産オーナーのものです。
仕組みは、以下の図に示すようなものだ。
長崎坂宿の事業スキーム。小笠原企画が企画設計と運営管理を行い、土地建物オーナーは改修工事費を負担する。小笠原企画が借主になるのでコストを抑えた改修が実現できる(資料:小笠原企画)
老朽化・空き家化した長屋の不動産オーナーは、小笠原さんの提案に理解を示し応じてくれた。オーナーは改修工事費用を負担するものの、「小笠原企画」が借主になり、家賃を支払うという担保があるので事業に踏み切りやすい。
また、小笠原さんはこれまでの店舗設計やDIYリノベーションなどの経験から、コストを切り詰めた改修のノウハウに長けている。オーナーの改修への投資費用は、自らが借主になる賃料にも反映されることになるので、コストもシビアに見極めながら費用対効果の高いリノベを行う。
小笠原企画にとっては、民泊「長崎坂宿」の運営によって得られる宿泊収入と地主に支払う家賃の差額を事業収益として得ることができる。小笠原さんは「企画や設計についてオーナーからは費用はもらっていません。民泊開業後の収益で、長い期間をかけて設計料も含めて確保するようにしています」と打ち明ける。
パンデミック危機にもテレワーク向け施設で柔軟に対応
小笠原さんが「長崎坂宿」の事業に着手したのは、2018年だった。1戸目の宿泊施設への改修「長崎坂宿ゲスト」の完成・開業が2019年だった。ターゲットをインバウンドの外国人家族・グループ客に絞り込み、4つのベッドとリビングを設けた。リビングからは、坂の街長崎の眺望が楽しめる。
民泊用のマッチングサイトに掲載すると、順調に宿泊客が利用してくれるようなり、事業はスムーズに進むかに思えた。
2019年に最初に開設した「長崎坂宿ゲスト」は、4つのベッドを備え、外国人家族やグループ向けの宿泊需要に対応するものとした(写真:小笠原企画)
しかし、予測しない事態に見舞われた。2020年春にはじまった世界的なパンデミックは、「長崎坂宿」事業の存続に関わる事態となった。
そこで、宿泊需要がもどるまで、2020年にワーケーション用の「レンタルスペースひとま」を、続けて2021年に「リモートポッドhaco」と「レンタルスペースcasa」を開設した。
「レンタルスペースひとま」。宿泊需要が戻るまでの暫定的なテレワーク専用のレンタルスペースを2020年に開設した(写真:小笠原企画)
オンライン会議用の「リモートポッドhaco」。テレワーク用に4平米のブースとした(資料:小笠原企画)
「レンタルスペースcasa」。ワーケーションに対応したレンタルスペースで、25平米(資料:小笠原企画)
収益施設を先にして、経営の安定確保を優先する施設整備
さらに、パンデミックの収束をにらみながら2022年には「長崎坂宿OKU」を、2023年には「長崎坂宿Shari」を開設した。
年に1~2戸ペースのゆっくりとしたペースであるが、時間をかけてローコストながら見栄えの良い民泊施設を次々と実現していった。
「長崎坂宿Shari」は2023年の開設(写真:藤本幸一郎)
「長崎坂宿Shari」の外観。
2025年7月現在、5戸の民泊用の部屋とフロント棟・イベント広場が完成している(資料:小笠原企画)
2024年9月には、フロント棟とそのなかのシネマルームが完成した。シネマルームは、宿泊者などが有料・貸し切りでビデオを視聴できるスペースだ。
そして、2025年5月にはフロント棟に小笠原さんの当面の目標だった無人コンビニ・コインランドリーが完成した。
無人コンビニは、宿泊客向けだけでなく、坂の上の方に住む地域住民の利用も想定している。坂の上には自動販売機すらなく地域の人たちは買い物難民ということもあったからだ。入室には、スマホでのセキュリティ登録とタッチ決済で、「無人運用」を可能にした。品ぞろえは、カップ麺やスナック、ペットボトル飲料、調味料、氷など片道20分先のコンビニまで行くほどではない「ちょっとしたニーズ」に応える物に限定した。
2024年9月に完成したフロント棟。長崎坂宿の市電駅側からのエントランス部分に当たる(写真:小笠原企画)
フロント棟の右側はキッチンカーなどの出店を想定したイベント広場とした(資料:小笠原企画)
2025年5月に完成した無人コンビニ。宿泊者以外にも坂の地域に暮らす人も利用することを想定した(写真:藤本幸一郎)
入退出管理は、QRコードをスマホで読み込みLINEに暗証番号が送られることでセキュリティを確保した(写真:藤本幸一郎)
民泊住戸を先に改修して、フロント棟などを後回しで整備していった理由について聞いたところ、「収益を生み資金回収をできる施設を優先して、フロントデスクや無人コンビニは後回しにしました。中国のショッピングモール開発で、最初からテナント全部を埋めることなく施設開発を優先して、後からゾーニングにのっとったテナント誘致を行った経験がありました。マスタープランさえしっかりしておけば、運営は回ることを実感していたことが大きいです」と話してくれた。
身の丈に合った再開発。人口縮小社会への処方箋
冒頭に紹介した「人口縮小社会での再開発」という切り口でキーワード毎に「長崎坂宿」を振り返ってみよう。
ストック市場建て替えや新築ではなく、既存長屋を活用多品種・少量生産面積や環境(眺望や部屋のかたち・階数)も異なる既存住戸について1つずつ最適解を導き出しながら改修するサービス・多様化従前の住宅という用途ではなく、観光地長崎へのインバウンド需要の高まりから収益性が高い「民泊」へのコンバージョン。パンデミックという不測の事態にも一時的にはワーケーション利用など柔軟に対応ゆっくり・少しずつ手応えを確認しながら年に1~2戸というゆっくりとした開発どうだろうか。まさに、「長崎坂宿」の取り組みは、人口減少社会・地域における「再開発」の最前線と位置づけてよいのではないだろうか。
リーマンショック以降だろうか。従来は都市開発の万能薬とも思われた「再開発」にも陰りが見えてきている。
再開発が完了したものの商業テナントが誘致できず新築時から空き家化しているケースがある。最近では、建築費の高騰で、事業収支が不透明になり、再開発事業自体がストップしてしまった事例もある。
こうした背景には、人口増加時代の考え方「建て替え/新築」「規格化/大量生産」「早く・多く」などが、再開発の必要条件であるかのように考えられてきた。大資本のデベロッパーや大手ゼネコンは、大きな事業フレームでないと動くことができない。
一方、小笠原さんの手による「長崎坂宿」は、この真逆の戦略で、身の丈にあった「再開発」実現していると見ることができるだろう。
「まねしてもらっていい」スタディツアーで全国にムーブメントを広げたい
小笠原さんは、こうした空き家再生・利活用について自ら手がけるほか、空き家再生のノウハウを伝えるスタディツアーを2023年から試験的にはじめて、いまでは月イチで開催している。それは「長崎坂宿の仕組みは、全国の地方どこでも応用・展開することができる」と考えたからだ。
小笠原さん自身が、どんなに頑張っても、年間に手がけられる空き家再生は2~3戸にとどまる。これでは、増え続ける空き家を解消するには焼け石に水だ。
「自分のノウハウを横展開してまねてくれる人が仮に10人いて、年間20~30戸が再生されればムーブメントとして社会に認知され、社会の風向きが変わるのではないかと考えました」とその理由を話してくれた。
スタディツアー(アクションサーベイツアー)は、レクチャーと現地見学の半日コース、宿泊付きで1.9万円だ(ツアーのみ1.3万円)。最初の頃は無料で行っていたが、物見遊山・冷やかしふうの参加者も多く、費用をもらうことでその分を学んで帰ろうと真剣に聞いてくれる参加者が増えたという。
半日のツアー以外に、2泊3日で斜面地空き家を巡る「ソーシャル・デベロップメント・ツアー」、建築家向けの自主事業のつくり方、事業プレゼン作成までを課題とする「クリエイティブ・キャピタル」といった上級のツアー・講座も用意しているという。
これまでの、こうしたツアーや講座には、延べ70人ほどの参加があった。「九州圏内のほか大阪や東京からの参加者が多いです。北海道やアメリカ・シアトルから参加された方もいます」と、小笠原さんの取り組みは、スレッズをはじめとしたSNSでの発信もあり広く関心を呼んでいるという。
ツアーの最初には座学でレクチャーを行う(写真:藤本幸一郎)
2025年1月に開催されたツアーの様子。設計事務所や地域工務店のスタッフ、地域協力隊、民泊事業を検討中のウェブデザイナーなど13名、この日は長野県や高知県からの参加者があった(写真:藤本幸一郎)
ツアー参加者の看護師が半年で高齢者シェアハウスを実現
小笠原さんに、実際の空き家再生や活用に踏み出した人がいるか聞いたところ「今年1月のツアーに参加した長崎市内の看護師の女性が、高齢者シェアハウスを開設しました」と紹介してくれた。
2025年7月、長崎市で高齢者シェアハウスを実現した看護師、溝口千尋(みぞぐち・ちひろ)さんの話を聞くことができた。溝口さんは、市内(旧伊王島町)の介護施設に勤務する看護師だ。
「介護施設に勤務して入所者さんたちを見るなかで、高齢者のシェアハウスがあったらいいなと思い、小笠原さんのツアーに参加しました」と参加の動機を話してくれた。
「長崎は坂の街ですから、足腰が不自由になって買い物に行けなくなったり、またひとり暮らしで自分ではエアコンをつけられなくて具合を悪くしたり…そんな高齢者の暮らしぶりを日々の仕事を通じて歯がゆく思っていました」と打ち明ける。
ツアー後の懇親会では、小笠原さんに自分の思いをぶつけた。「これまでさまざまな機会に相談に乗っていただきました。紆余曲折ありましたが、ついに小さなシェアハウスのオープニングにこぎ着けることができました」と話してくれた。
2025年7月6日、看護師の溝口さんは、仕事の傍らの準備にもかかわらず、長崎坂宿のスタディツアーからわずか半年で高齢者シェアハウスのオープンにこぎ着けた(資料:溝口千尋)
オープニング当日は、見学者に対して溝口さん自身がプレゼンを行った(写真:溝口千尋)
小笠原さんは「当初、古家を買ってリノベして高齢者シェアハウスにすることを考えていたようです。ただ看護師という激務をこなし、二人の子育てをしながら素人DIYで改修するのは無理があると思い、そのことを伝えました」と話す。
溝口さんは、アドバイスに従い、戸建ての賃貸住宅探しに切り替え、築50年の住宅を大家さんから借り受けシェアハウス向けの改修を休日に家族の手助けも得ながら行った。チラシやプレゼン資料も自ら作成した。
「彼女の強みは、医療と福祉の知識です。一人暮らしの高齢者という地域課題に立ち向かう姿はとても心強いものがあります」と話してくれた。
溝口さんは「小笠原さんの取り組み、また助言をいただいたことで、背中を押してもらいました。私自身も、高齢者シェアハウスを実現に結びつけていく過程で、さまざまな人に応援してもらっています。入居者集めはこれからになりますが、入居見学希望の引き合いもあります」と笑顔で語ってくれた。
空き家は増加の一途をたどるが、社会課題の受け皿にも
2024年時点で、47都道府県のなかで人口増加しているのは東京都と埼玉県だけだ(※3)。全国の多くの地域で、空き家問題は今後一層深刻化していくだろう。人口減社会でも大きな収益の見込める都市部や中心市街地に限っては再開発などの機運もあろうが、郊外や住宅地などのほとんどでは、大資本のデベロッパーや建設会社が関わることは難しいと考えられる。
人口縮小社会・地域において、小笠原さんの取り組み・事業モデルは大きな可能性を指し示しているように思える。
また看護師・溝口さんのように、住宅や建築には関わりのない分野で社会課題解決への思いを持った人々も少なくない。増える空き家は、そうした課題解決の受け皿にもなる可能性も秘めている。
●出典
※1:「長崎市第五次総合計画」2022年2月
※2: 都道府県庁所在地の人口減少率ランキング
※3:「人口推計(2024年(令和6年)10月1日現在)結果の要約」総務省統計局
●取材協力
小笠原企画
長崎坂宿
高齢者向けシェアハウス~KOU~コウ(Instagram)

![[のどぬ~るぬれマスク] 【Amazon.co.jp限定】 【まとめ買い】 昼夜兼用立体 ハーブ&ユーカリの香り 3セット×4個(おまけ付き)](https://m.media-amazon.com/images/I/51Q-T7qhTGL._SL500_.jpg)
![[のどぬ~るぬれマスク] 【Amazon.co.jp限定】 【まとめ買い】 就寝立体タイプ 無香料 3セット×4個(おまけ付き)](https://m.media-amazon.com/images/I/51pV-1+GeGL._SL500_.jpg)







![NHKラジオ ラジオビジネス英語 2024年 9月号 [雑誌] (NHKテキスト)](https://m.media-amazon.com/images/I/51Ku32P5LhL._SL500_.jpg)
