大好きなものに囲まれて暮らしたい。時には気の合う友人を招き、上質な空間で楽しい時間を過ごしたい――。
環境性能と住空間デザイン、住む人の“真の調和”をテーマとした「住まいの環境デザインアワード2017」でグランプリに輝いたのは、そうした大人の夢を実現する「ギャラリー兼用住宅」。47平米のマンションの一室に、家主が趣味で集めた古道具を展示するギャラリー、生活空間、そして友人をもてなす客間が共存する。ギャラリーという“パブリック”な空間と住宅の“プライベート”な空間がゆるやかにまじりあう住宅を訪ねた。
南浦和のマンションの一室。扉を開けると、自然光にぼんやりと照らされた古道具がゆったりと陳列されている。いずれもオーナーの吉田有志さんが、趣味で集めたものだ。
【画像1】奥の居住スペースから光が差しこむギャラリー。最初は薄暗く感じられるが、すぐに目が慣れてくる(撮影/長谷川健太)
居住スペースは、ギャラリーの奥。こちらは白を貴重とし、たっぷりと光が差し込む明るい空間だ。
【画像2】居住スペース。ベッドルームとダイニング・キッチンを仕切る麻布のカーテンが涼しげだ。カーテンは取り外しができ、ギャラリースペースを眺めることもできる(写真提供/長谷川健太)
また、玄関のすぐ右隣りには、一畳ほどのこぢんまりとした和室がある。
「Airbnbで海外の人が泊まりに来た時に使ってもらおうと思って…まだ実現していないんですけどね」(吉田さん)。
【画像3】1畳ほどのスペースだが、掛け軸や壺などを置き「客間」に仕立てた(撮影/長谷川健太)
異なる「3つの空間」が同居するこの部屋は、築43年のマンションの一室をリノベーションしたものだ。一体どんな経緯でこのような“住宅兼ギャラリー”が出来上がったのだろうか。吉田さん、そして、この家をデザインした建築家の川島範久さんに話をうかがった。
「自然が偶発的に生み出す美しさ」を暮らしにも同じアメリカの大学に通っていたという吉田さんと川島さん。ある時、パソコンの充電器を忘れた川島さんが、図書館で近くの席にたまたま座っていた吉田さんに『貸してくれないか』と声をかけたのがきっかけで、仲良くなったという。リノベーションは、2年前に日本に帰国した吉田さんが、“好きなモノに囲まれて暮らしたい”と、先に帰国していた川島さんに相談したことから始まった。
【画像4】オーナーの吉田有志さん(撮影/藤原葉子)
吉田「僕は美術が好きで、なかでも古道具を集めてきました。
そんな相談を受けた川島さんは、まず既存の構造躯体以外を全て撤去することから着手したそうだ。
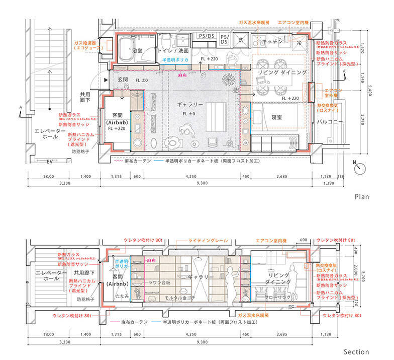
川島「もともとこの部屋は、1970年代に普及した『中LDKプラン』の派生系の『続き間プラン』。中廊下に面して2つの個室と納戸とが縦に並んだ設計になっていました。その空間に“もの”を配置し、なおかつそこで仕事をしたり、生活をしたりすることを考えると、結構な“広さ”が必要になる。まずは部屋の間仕切りを取り払い、プランニングを始めました」
【画像5】建築家の川島範久さん(撮影/藤原葉子)
プランニングにあたり、川島さんが注目したのが日本の“土間”。玄関とひと続きになった土間なら、友人も入りやすい。光は直接差し込まないが、日常生活で使われてきた古道具には、美術館のような明るい光は必要なく、障子越しのような減衰された光の方がむしろ適している。そこで、ギャラリーは玄関とひと続きの土間に、住宅部分は一段小上がりにして、窓面に即してL字型に配置。ギャラリーと居住スペースには、光を透過する戸棚を設けることで緩やかな境界をつくった。
【画像6】居住スペース、客間とギャラリーの間には光を透過する戸棚を設置。
【画像7】もともとはDKと個室が細かく仕切られた間取り(右)だったが、仕切りを取り払い、居住スペース、客間の床をギャラリーに対して一段上げることによって、ゆるやかな境界を生み出した(画像提供/Norihisa KAWASHIMA)
【画像8】棚の背板にポリカーボネートを使用したことで、ギャラリー部分にも柔らかい光が差し込む(写真提供/長谷川健太)
川島「自然光の良さは、時間や天気によって差し込み方や光の強さが変わること。それに照らされる古道具も、それぞれ違う見え方になるんです。吉田さんは古道具を“いろいろな見方ができるアート作品”として楽しんでいますが、自然の変化が反映される住宅であれば、その楽しみも一層拡張されていくのかな…と思っています」
また、設計のこだわりは“光”だけではない。
川島「特に気を配ったのが『温熱環境』と『音環境』です。壁にはしっかり断熱材を吹き、熱が逃げにくいよう窓に“断熱遮音サッシ”と“Low-Eペアガラス”、さらに内側に断熱ブラインドを取り付けました。これにより、冬でも熱が逃げにくく、夏には冷気が逃げにくいようにしています。また、防音性にも優れているので、近くを走っている電車の音も気にならないようにしてあります。せっかくなら、静かな環境で作品を楽しんでもらいたいですからね」
さらに、生活動線に配慮し、キッチンや洗面台、トイレ、お風呂はひと続きに。洗濯機は音が気にならないよう、壁際に収納し厚い扉を付けた。好きなものに囲まれた生活を長く楽しむためにも、随所に快適に暮らすための工夫が凝らされているのだ。
そんな川島さんの“仕事ぶり”には吉田さんも大満足。古道具を鑑賞する楽しみもさらに増したという。
吉田「この空間では日によって古道具の見え方が違うので、毎朝起きて、『今日はどんな風に見えるかな?』と何気なく眺めるのが楽しみになりました。古道具と“一緒に住んでいる”という感じですね」
【画像9】麻布越しにうっすらと浮かび上がる古道具のコレクション。その日の天気や時間によって、見え方が変わるという(撮影/藤原葉子)
吉田「ここに置く古道具は、傷の付き方や角度によって見え方が変わる、“アート的要素”があるものを好んで選んでいます。ここに住むようになってから、“ものの見方っていろいろあるんだな……”と改めて感じるようになりましたね。そういう体験は仕事にも生かせるんじゃないかと思っています」
【画像10】ギャラリーの壁に飾られた“餅板”。黒い影が「ロスコの抽象画みたいに見えるんですよ」と吉田さん(撮影/藤原葉子)
理想の家づくりの第一歩は、「時間をかけるのを恐れない」ことなお、設計開始から完成までに要した期間は約半年。その間、川島さんは吉田さんと幾度も話し合いを重ねた。
川島「オーダーする側に、最初から“自分が本当にほしいもの”を分かっている人は少ないと思います。だからヒアリングや、その人の性格、持っている雰囲気をくみ取るのが大切です。もちろん、僕も全てを分かっているわけじゃないから、吉田さんから『しっくりこない』と言われたら、また考え直して再提案する。そういうプロセスを経て、吉田さんが本当に望むものを少しずつ理解していきました」
「出来上がった空間に責任を持ちたい」――。だからこそ、クライアントの言われた通りではなく、「ここはこうした方が良い」と提案することもあったという。
吉田「僕はカーテンを、薄いメッシュ地の麻布ではなくてもう少し厚手のものにしたいと希望したんです。すると、普段は強く反論をしない川島さんが、『いや、そうすると光を通さなくなって部屋を狭く感じるようになってしまうから、それは絶対しない方が良いよ』って。実際に出来上がってみると、川島さんが言ったことを尊重していて良かったと思います」
【画像11】設計についての話し合いは、時に3時間に及ぶこともあったという(撮影/藤原葉子)
施工期間が長引くにつれ、「早く住みたい」と気が急くこともあったという吉田さん。しかし、川島さんは「焦らないで時間をかけた方がいいよ」と繰り返し伝えたそうだ。
川島「人間は環境によって変わる生き物。ですから、家を建てたりリノベーションをしたりすることって、ある意味『自分を変えるチャンス』なんです。それなのに“消費財”と同じノリで建ててしまうと、そのチャンスを自ら捨てることになる。決められたスケジュールは守られなければなりませんが、家をつくるときは、時間をかけるのを恐れないというのが、理想の家をつくるための第一歩目だと思います。クライアントも設計者も、設計のプロセスで自分を見つめ直していくうちに、どんどん“変化”していきますから」
理想の住まいをつくるためには、 “自分がどう生活をしたいか”をじっくりと考え、互いに進化ができるパートナーを見つけることが大切だといえそうだ。
●取材協力・川島範久さん
建築家。1982年神奈川県生まれ。2005年東京大学卒業。
2014年に《ソニーシティ大崎》で日本建築学会賞(作品)、2016年に《Diagonal Boxes》で第7回サステナブル住宅賞 国土交通大臣賞(最優秀賞)、2017年に《Yuji Yoshida Gallery / House》で住まいの環境デザイン・アワード2017 グランプリ、等受賞多数。
・Yuji Yoshida Gallery / House
・川島範久建築設計事務所 元画像url http://suumo.jp/journal/wp/wp-content/uploads/2017/09/141256_main.jpg 住まいに関するコラムをもっと読む SUUMOジャーナル

![[のどぬ~るぬれマスク] 【Amazon.co.jp限定】 【まとめ買い】 昼夜兼用立体 ハーブ&ユーカリの香り 3セット×4個(おまけ付き)](https://m.media-amazon.com/images/I/51Q-T7qhTGL._SL500_.jpg)
![[のどぬ~るぬれマスク] 【Amazon.co.jp限定】 【まとめ買い】 就寝立体タイプ 無香料 3セット×4個(おまけ付き)](https://m.media-amazon.com/images/I/51pV-1+GeGL._SL500_.jpg)







![NHKラジオ ラジオビジネス英語 2024年 9月号 [雑誌] (NHKテキスト)](https://m.media-amazon.com/images/I/51Ku32P5LhL._SL500_.jpg)
